EasyManua.ls Logo

Ondal ACROBAT 2000 - ACROBAT Wall-Mounted Version, Single-Arm Variant

Default Icon
Print Icon
To Next Page IconTo Next Page
To Next Page IconTo Next Page
To Previous Page IconTo Previous Page
To Previous Page IconTo Previous Page
Loading...
104
10 Technical Description
1505093, Edition 2012-05, Version 5
GB
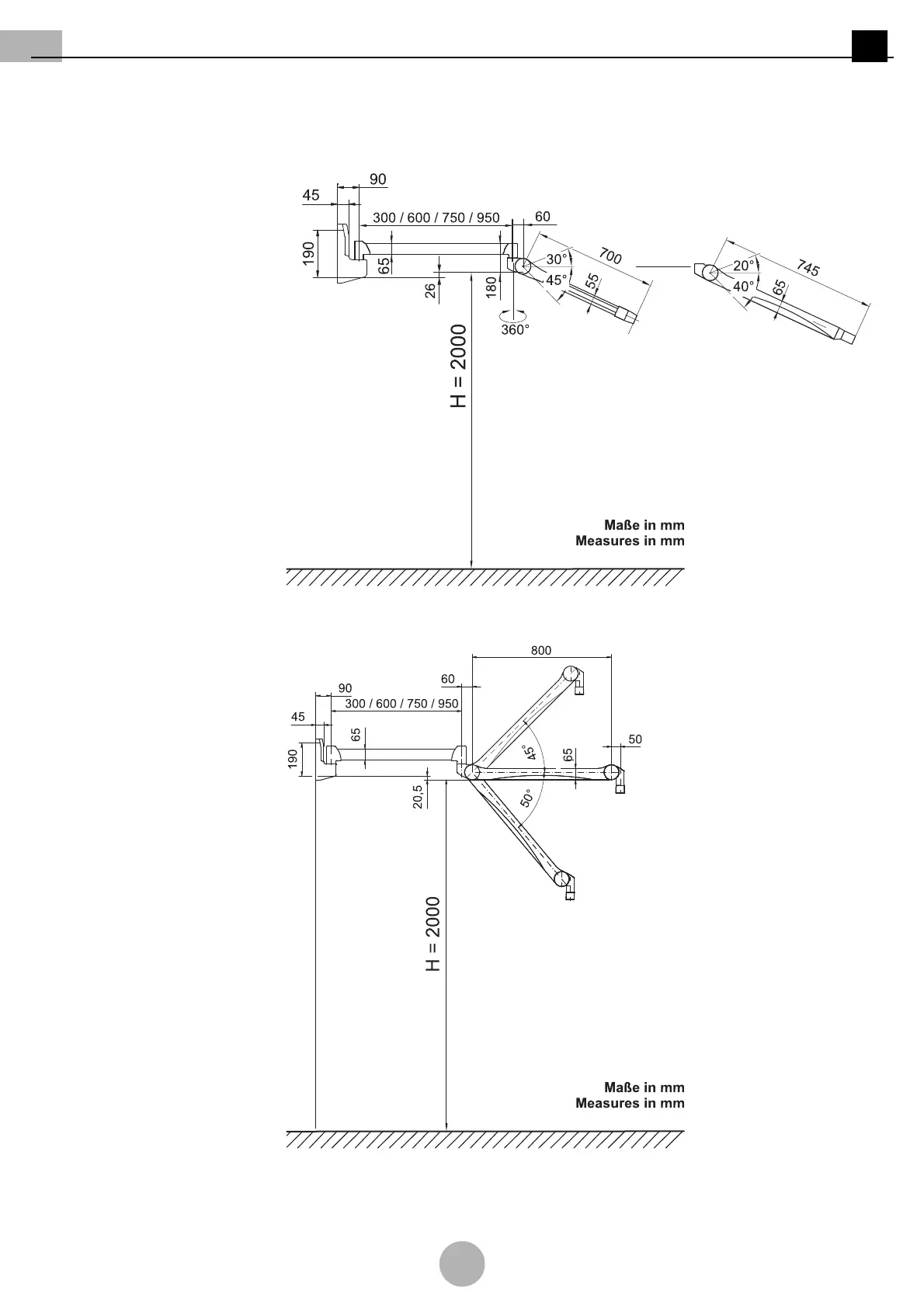
10.3 ACROBAT wall-mounted version, single-arm variant
ACROBAT LCH/NRH
ACROBAT 2000 (standard version)

Table of Contents

Other manuals for Ondal ACROBAT 2000

Related product manuals