EasyManua.ls Logo

Ondal ACROBAT 2000 - ACROBAT Wandversion - Einarmig

Default Icon
Print Icon
To Next Page IconTo Next Page
To Next Page IconTo Next Page
To Previous Page IconTo Previous Page
To Previous Page IconTo Previous Page
Loading...
52
10 Technische Beschreibung
1505093, Ausgabe 2012-05, Version 5
DE
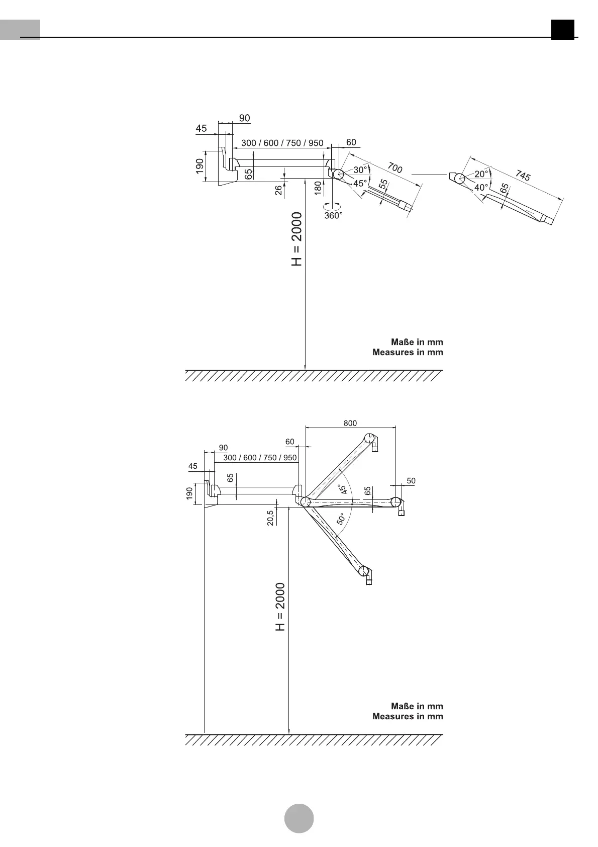
10.3 ACROBAT Wandversion - Einarmig
ACROBAT LCH/NRH
Acrobat 2000 (Standard)

Table of Contents

Other manuals for Ondal ACROBAT 2000

Related product manuals