EasyManua.ls Logo

Panasonic CU-8ME1XPK - Page 136

Panasonic CU-8ME1XPK
643 pages
Print Icon
To Next Page IconTo Next Page
To Next Page IconTo Next Page
To Previous Page IconTo Previous Page
To Previous Page IconTo Previous Page
Loading...
PACD011001C2 Test Operation
Test Operation Urban Multi “MX1, ME1 Series” Using R-22 115
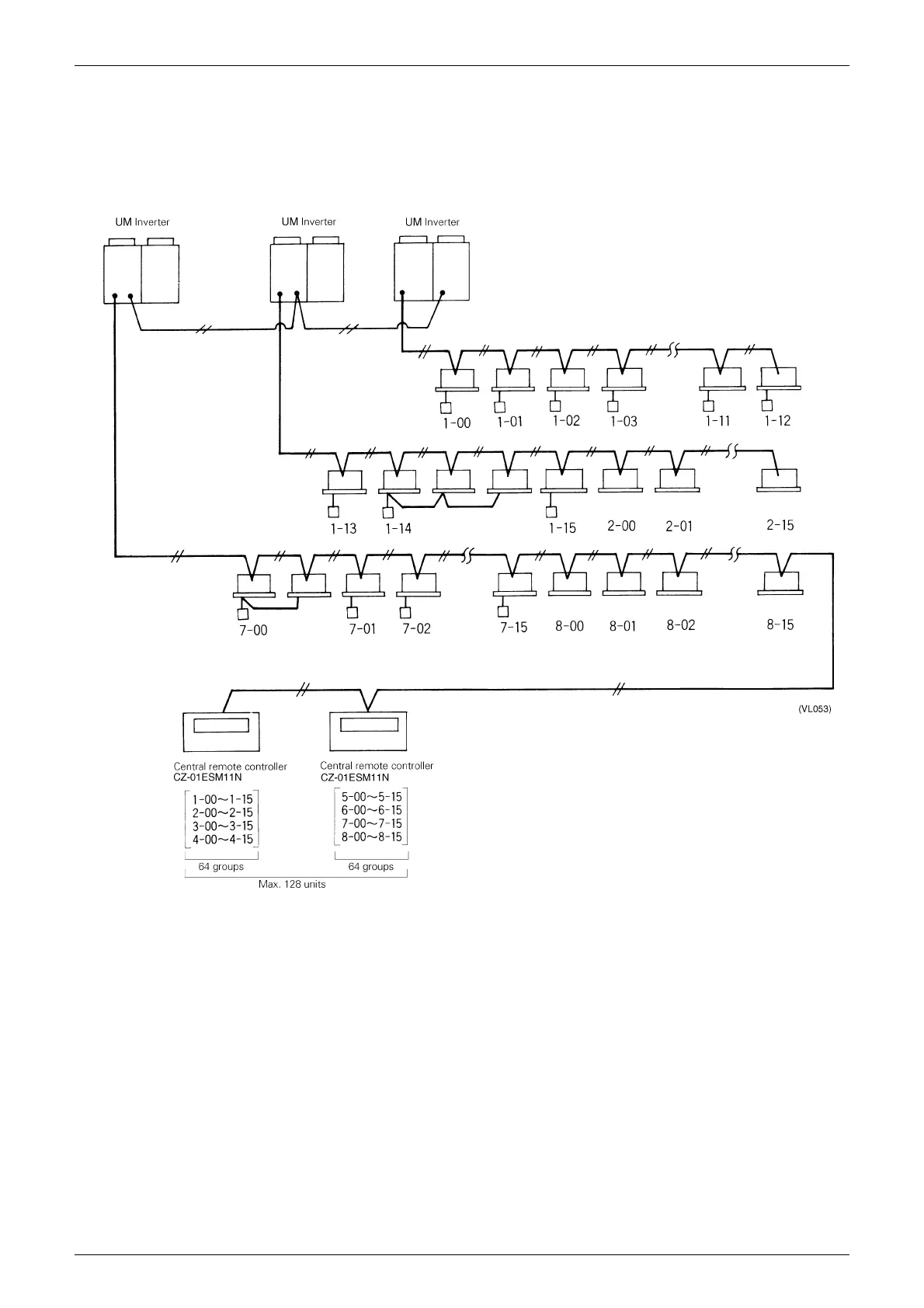
1.21.2 When Using Centralised Control Device
Up to 128 indoor units can be connected within a system. (Group control is not required to increase the
number of units that can be connected within the system.)
When double remote controllers are connected, the same indoor unit cannot be registered for more
than one central remote controller.
Up to 2 central remote controllers can be connected per system.
Up to 8 unified ON/OFF controllers can be connected per system.
Only 1 schedule timer can be connected per system.

Table of Contents

Other manuals for Panasonic CU-8ME1XPK

Related product manuals