EasyManua.ls Logo

Panasonic CU-8ME1XPK - BMS Interface Adaptor (DCS302 A52)

Panasonic CU-8ME1XPK
643 pages
Print Icon
To Next Page IconTo Next Page
To Next Page IconTo Next Page
To Previous Page IconTo Previous Page
To Previous Page IconTo Previous Page
Loading...
Interface Adaptor PACD011001C2
616 Appendix
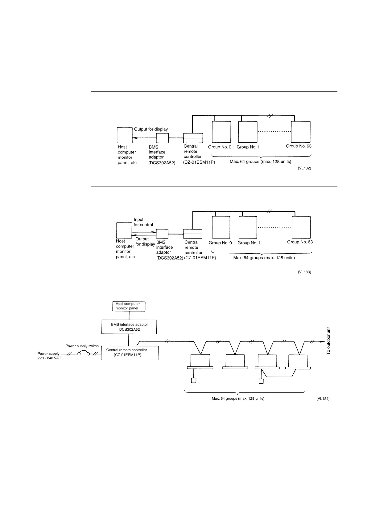
6.7 BMS Interface Adaptor (DCS302A52)
Connecting a BMS interface adaptor to the central remote controller enables unified display on the host
computer monitor panel (display of operation and malfunction), and unified control from the host computer
monitor panel (on/off commands).
6.7.1 System Outline
Unified Display
Displays operation and malfunctions of all indoor units controlled by central remote controller on a host
computer monitor panel.
Unified Control
Enables unified display of all indoor units controlled by central remote controller and unified ON/OFF
control from a host computer monitor panel.
6.7.2 Wiring General

Table of Contents

Other manuals for Panasonic CU-8ME1XPK

Related product manuals