EasyManua.ls Logo

Panasonic CU-8ME1XPK - Page 436

Panasonic CU-8ME1XPK
643 pages
Print Icon
To Next Page IconTo Next Page
To Next Page IconTo Next Page
To Previous Page IconTo Previous Page
To Previous Page IconTo Previous Page
Loading...
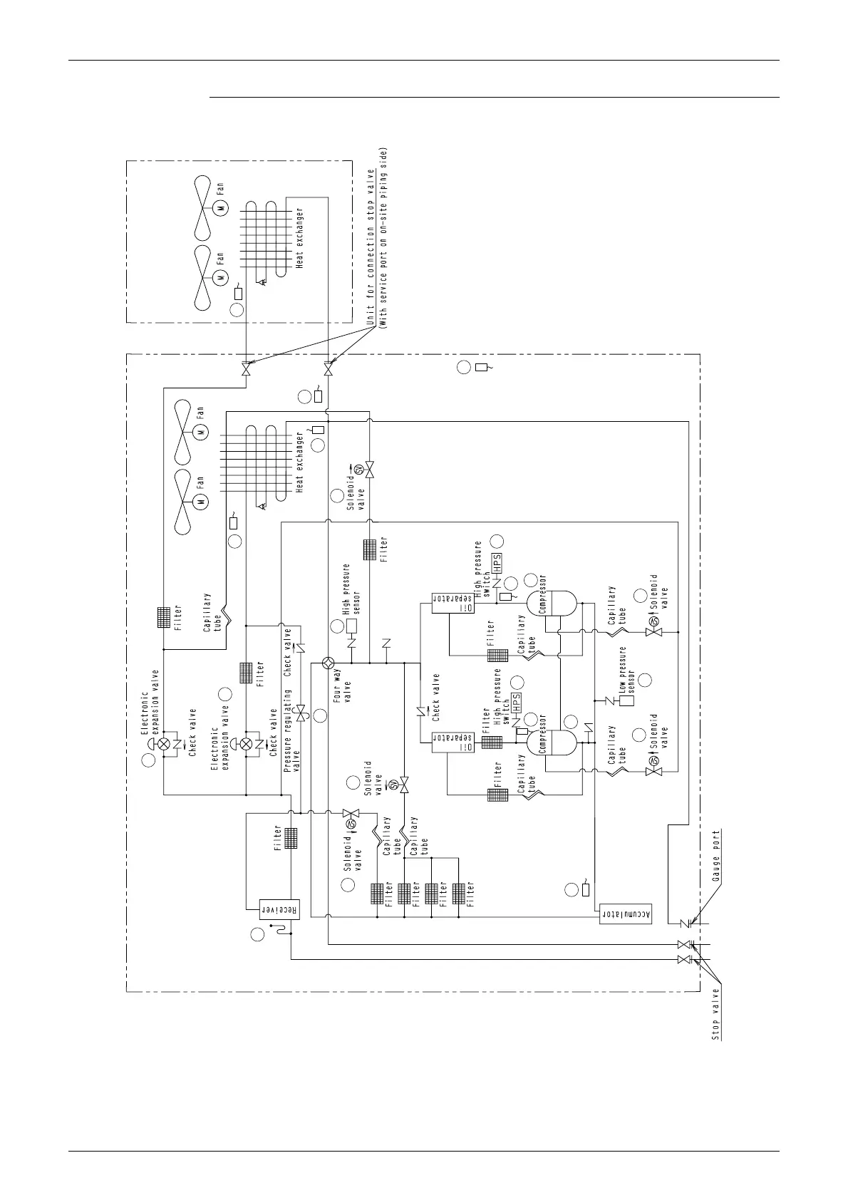
PACD011001C2 Outdoor Unit Refrigerant System Diagram
Function UM Combination “MA1R Series” Using R-407C 415
PA-16·18·20MA1XPK
(Y2E)
(Y1E)
K
X
Y
J
2
S
N
Q
M
8
9
1
U
5
A
V
6
B
P
11
T
O
4
3D024909
SPH
SPL

Table of Contents

Other manuals for Panasonic CU-8ME1XPK

Related product manuals