EasyManua.ls Logo

Panasonic SA-PM24EB - 15.2. AUDIO BLOCK DIAGRAM

Panasonic SA-PM24EB
99 pages
Print Icon
To Next Page IconTo Next Page
To Next Page IconTo Next Page
To Previous Page IconTo Previous Page
To Previous Page IconTo Previous Page
Loading...
66
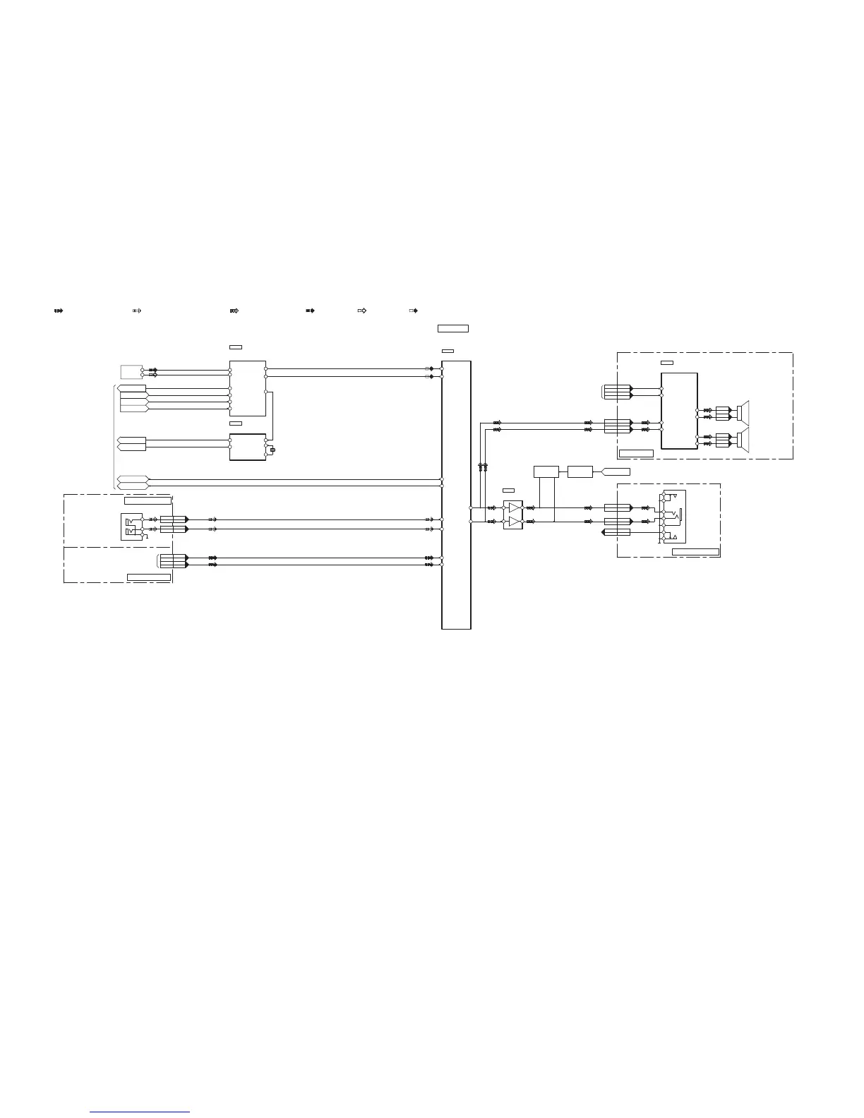
15.2. AUDIO BLOCK DIAGRAM
SA-PM24EB/EG/EP AUDIO BLOCK DIAGRAM
: MUSIC PORT AUDIO INPUT SIGNAL LINE : AUDIO OUTPUT SIGNAL LINE: CD AUDIO INPUT SIGNAL LINE
: AM SIGNAL LINE : AM/FM SIGNAL LINE: FM SIGNAL LINE
33
WH902CN450
11
WH902CN450
55
WH902CN450
44
WH902CN450
77
WH902CN450
R
L
MUSIC PORT
JK950
3
1
2
TUNER
C1BB00001120
Q1,Q2,X1,X2
IC1
RDS
C1AB00002751
IC302
ASP
C1BB00000732
IC301
POWER AMPLIFIER
AN17831A
IC5101
MPORT L
ASP CLK
TUNER LCH
TUNER RCH
ASP DATA
5A1
6 IN R
8 IN L
11 D1
12 D2
MPORT R
CD L
CD R
6A2
17 SC
9C1
10 C2
18 S1
EXT ANT
P1
ASP CLK
PLL DO
PLL CLK
PLL CE
RDS CLK
PLL CE
PLL CLK
PLL DO
PLL DI
16 RDCL
RDS CLK
RDS DATA
2 RDDA
RDS DATA
PLL DI
HP MUTE
ASP DATA
LEFT 22
RIGHT 21
MPXIN 4
AM ANT 2
FM ANT 3
XIN 13
XOUT 14
OUT+ L 12
OUT- L 10
OUT+ R 2
OUT- R 4
3
1
5
7
OP-AMP
C0AABB000125
IC700
Q222
MUTING
Q750
MUTING
CONTROL
HP L
HP R
11
CN5102CN806
IN L
33
CN5102CN806
IN R
HP SW
IN1 R
9 MUTE
66
CN5102CN806
AMP MUTE
5 STBY
55
CN5102CN806
STBY
IN2 L
R
L
FROM
SERVO/SYSTEM CONTROL
TO
SERVO/SYSTEM CONTROL
FROM
SERVO/SYSTEM CONTROL
FROM/TO
SERVO/SYSTEM CONTROL
FROM
SERVO/SYSTEM CONTROL
HEADPHONE
JK951
3
2
1
6
7
5
4
MAIN P.C.B.
HEADPHONE P.C.B.
HEADPHONE P.C.B.
CD SERVO P.C.B.
20 3
CN7002 CN807
22 1
CN7002 CN807
+
-
SPEAKER (RIGHT)
1
JK501
2
JK501
+
-
SPEAKER (LEFT)
3
JK501
4
JK501
TUNER CIRCUIT
X320
POWER P.C.B.

Table of Contents

Related product manuals