EasyManua.ls Logo

Panasonic SA-PM24EB - 15.3. POWER SUPPLY BLOCK DIAGRAM; POWER SUPPLY BLOCK DIAGRAM

Panasonic SA-PM24EB
99 pages
Print Icon
To Next Page IconTo Next Page
To Next Page IconTo Next Page
To Previous Page IconTo Previous Page
To Previous Page IconTo Previous Page
Loading...
67
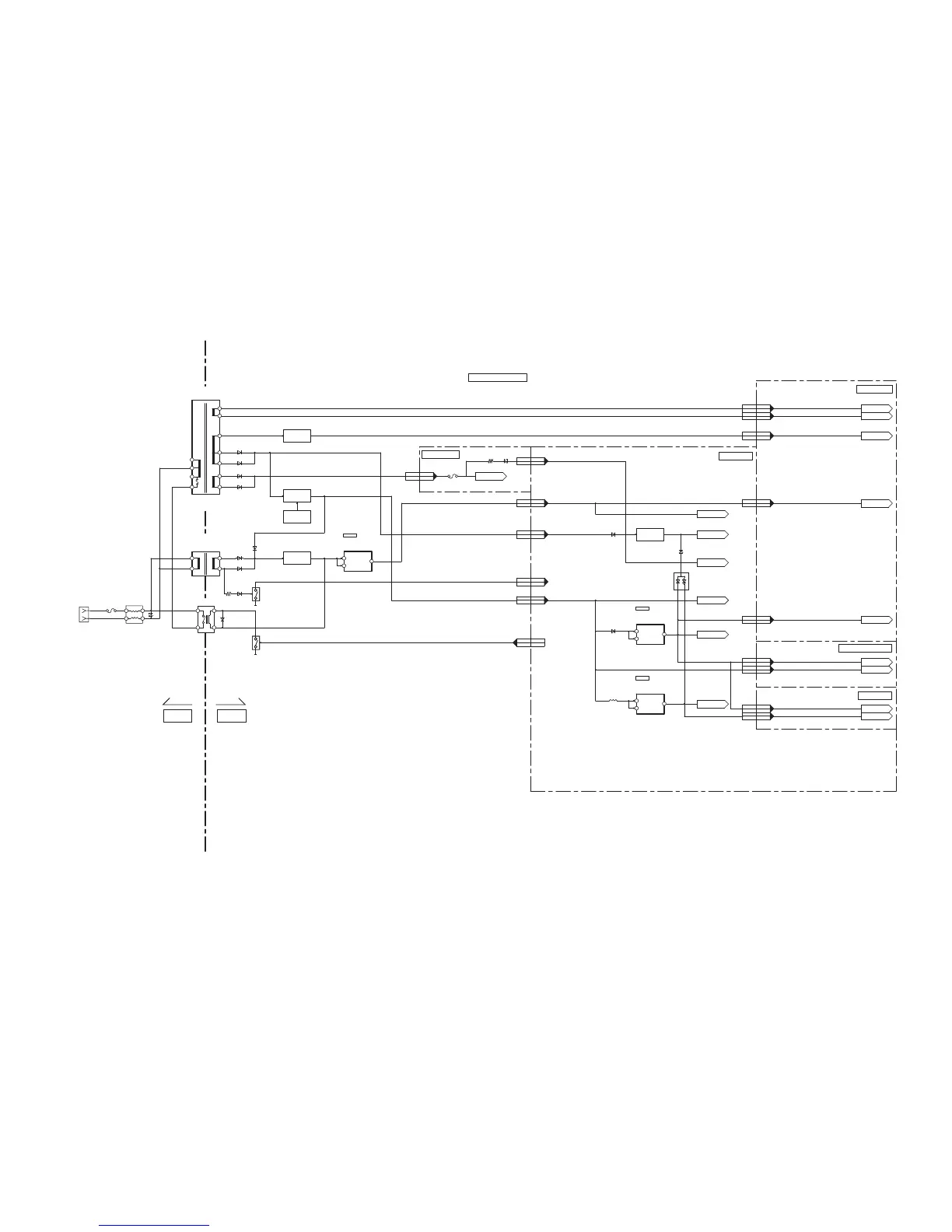
15.3. POWER SUPPLY BLOCK DIAGRAM
SA-PM24EB/EG/EP POWER SUPPLY BLOCK DIAGRAM
HOT COLD
AC INLET
JK5901
F5901
Z5901
L5901
33
CN804CN5903
3
2
7
9
SUB
TRANSFORMER
T5902
3
2
1
5
MAIN
TRANSFORMER
T5901
3
2
4
1
D5923
D5921
D5919
13
12
11
10
9
D5905
D5907
8
7
D5901
D5902
D5925
D5920
D660,D654,D655
3.3V
VREF+
FL3.3V
VREF+
D658
1010
CN900CN451
3.3V
3.3V
7.5V
9V
DC DET
5V
VCC
-VP-VP
44
WH901CN5902
-VP
FL2FL2
7.5V
SYS3.3V SYS3.3V
DC DET
66
CN804CN5903
M+9V
77
CN804CN5903
VCC
M+7.5V
3,43,4
CN5101CN5901
44
CN806CN5102
VCC
11
CN804CN5903
HALT
VCC
VCC
3.3V
3.3V
D5V
Q5907
VOLTAGE
REGULATOR
Q5901
VOLTAGE
REGULATOR
Q5902
POWER
CONTROL
D650
D653
D5111
Q650
VOLTAGE
REGULATOR
A9V
D5V
IC650
2 VCC
1 CTL
VOLTAGE
REGULATOR
C0DAEJG00001
OUT 4
SYS3.3V
M+9V
Q5903
VOLTAGE
REGULATOR
-VP
IC5901
5IN
1 CRTL
VOLTAGE
REGULATOR
C0DBGYY00089
OUT 4
3.3V
3.3V
IC651
1 VIN
3 VSTDBY
VOLTAGE
REGULATOR
C0DBZGC00067
CD3.3V 5
22
WH901CN5902
FL2
FL1FL1
11
WH901CN5902
FL1
44
CN900CN451
VREF
122
CN7002CN807
7.5V
7,8,194,15,16
CN7002CN807
3.3V
5V
122
P901CN802
3.3V
212
P901CN802
FROM
SERVO/SYSTEM CONTROL
TO
SERVO/SYSTEM CONTROL
TO
SERVO/SYSTEN CONTROL
22
CN804CN5903
PCONT
PANEL P.C.B.
CD SERVO P.C.B.
USB P.C.B.
FP5901
RL5901
2
1
4
3
Q5905
PCONT SWITCH
Q5904
HALT SWITCH
MAIN P.C.B.
POWER P.C.B.
TRANSFORMER P.C.B.

Table of Contents

Related product manuals