EasyManua.ls Logo

Record HA8-SP - Center Spindle (Concealed); Center Hung

Record HA8-SP
70 pages
Print Icon
To Next Page IconTo Next Page
To Next Page IconTo Next Page
To Previous Page IconTo Previous Page
To Previous Page IconTo Previous Page
Loading...
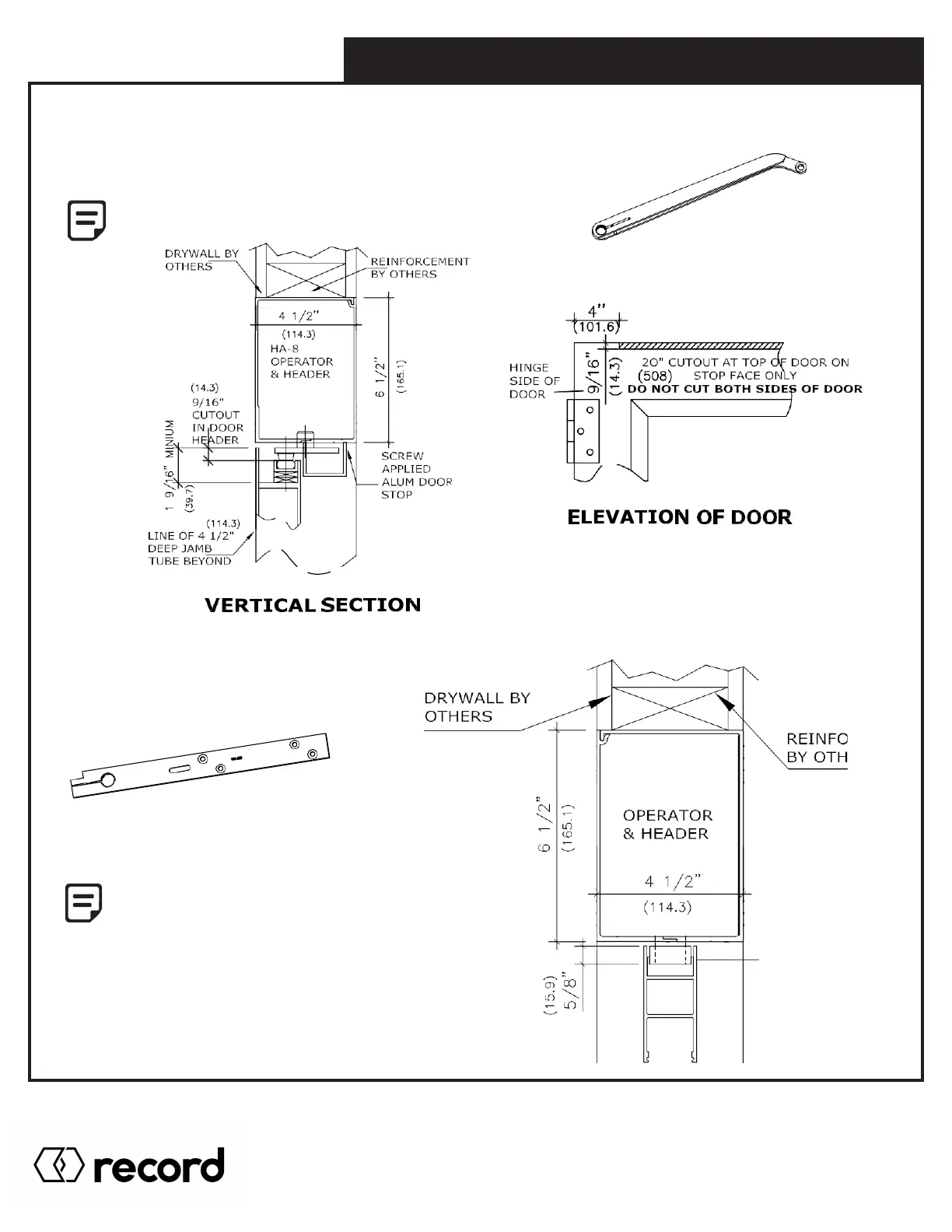
3.4 Center Spindle (Concealed)
Center Spindle can be used in concealed application to achieve a clean look.
The track must be installed in the top web of the door.
3.5 Center Hung
Hinge side top rail needs to cut out
on back of door for operator arm
(min. 1 5/8” x depth of web) (41.3)
3.0 ARM INSTALLATION
Pg. 32
HA8-SP Manual V. 7.0
Record Canada Inc.
Toll Free: 1-877-348-6837
info.ditec.ca@recorddoors.com
www.recorddoors.ca
Record USA Inc.
Toll Free: 1-866-901-4284
info.ditec.us@recorddoors.com
www.recorddoors.com

Related product manuals