EasyManua.ls Logo

REMBE Q-FlapCompact II - Terminal Box Wiring Diagram

REMBE Q-FlapCompact II
91 pages
Print Icon
To Next Page IconTo Next Page
To Next Page IconTo Next Page
To Previous Page IconTo Previous Page
To Previous Page IconTo Previous Page
Loading...
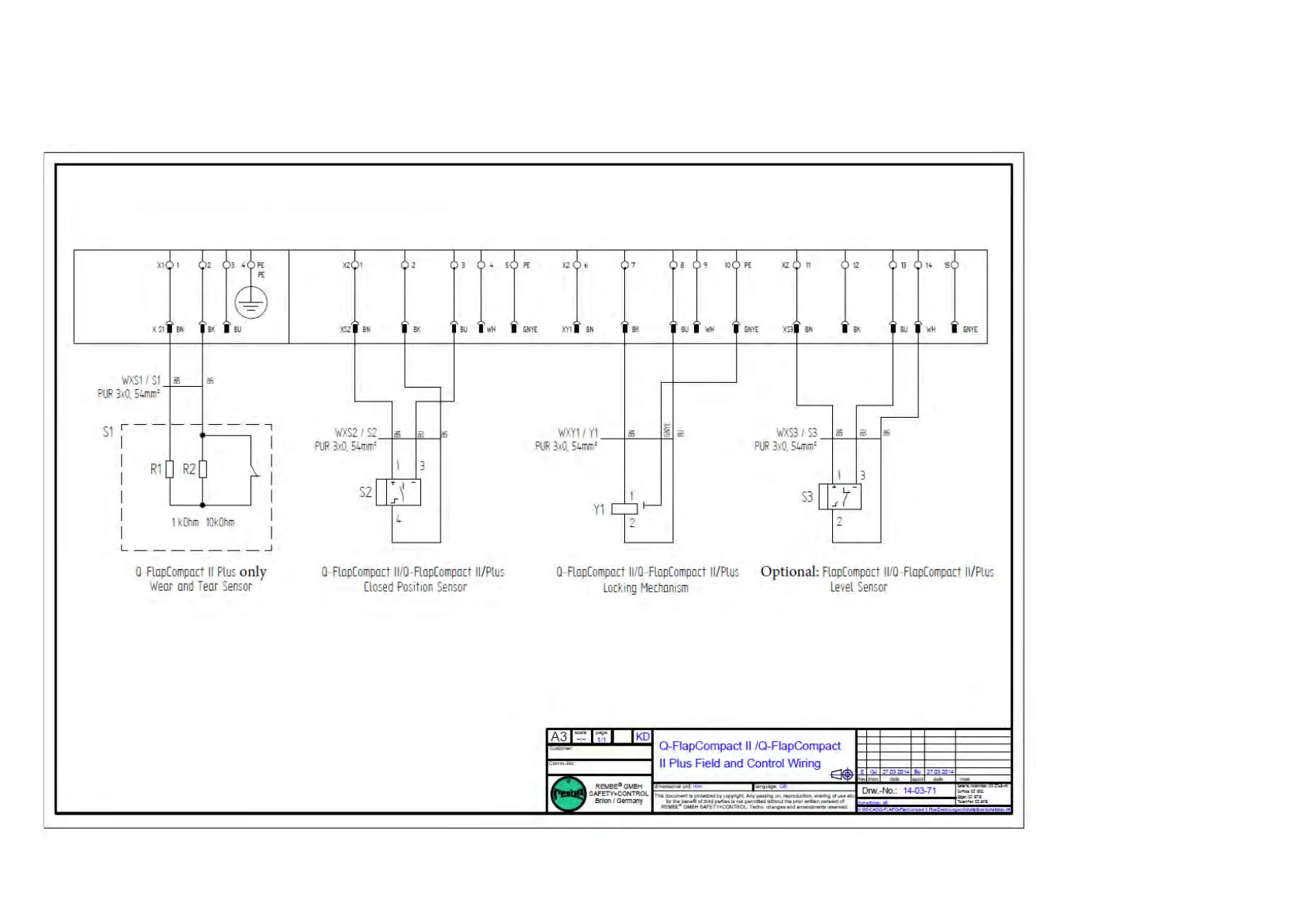
6.4 Terminal box wiring diagram
Also see Section 4.4, Monitoring panel requirements]

Table of Contents

Related product manuals