EasyManua.ls Logo

Rockwell Automation Allen-Bradley 2080-L50E - Page 30

Rockwell Automation Allen-Bradley 2080-L50E
108 pages
To Next Page IconTo Next Page
To Next Page IconTo Next Page
To Previous Page IconTo Previous Page
To Previous Page IconTo Previous Page
Loading...
30 Rockwell Automation Publication 2080-QS004C-EN-E - October 2023
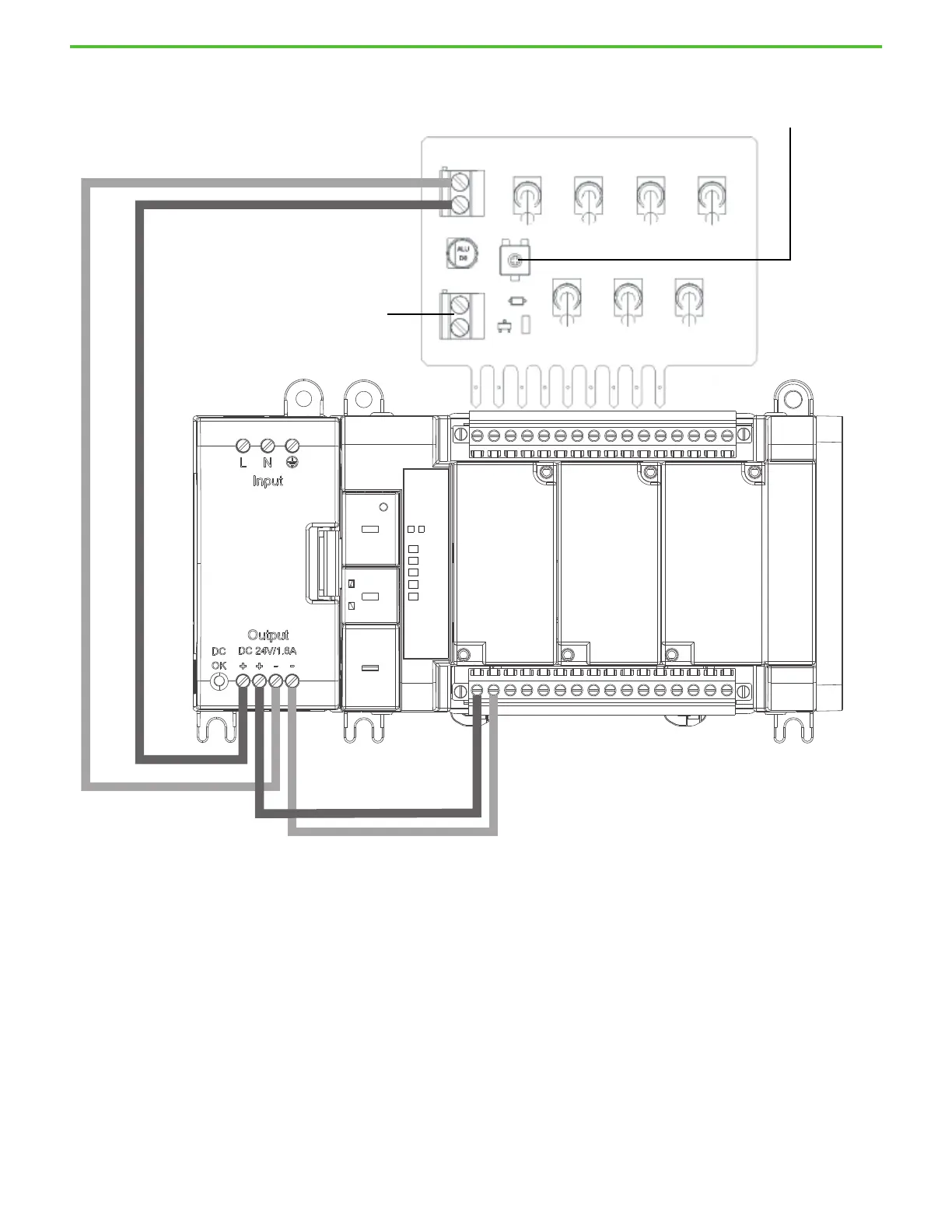
Chapter 5 Connect the Input Simulator Board
Figure 2 - Micro850 Controller Input Simulator Board Wiring Diagram
Analog Outputs
Potentiometer
SW11-I00 SW12-I01 SW13-I02 SW14-I03
GND
+24V DC
GND+24V DC
Can optionally be wired to an
analog input plug-in or expansion
I/O module

Related product manuals