EasyManua.ls Logo

SICK deTec4 Core - Mounting Accessories; Dimensional Drawing of the Upgrade Bracket (2071021); Mounting Accessories Ordering Information

SICK deTec4 Core
80 pages
Print Icon
To Next Page IconTo Next Page
To Next Page IconTo Next Page
To Previous Page IconTo Previous Page
To Previous Page IconTo Previous Page
Loading...
Exchange bracket
A
B
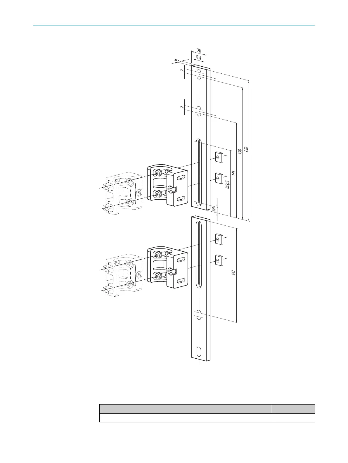
Figure 34: Dimensional drawing of the upgrade bracket (2071021)
14.2 Mounting accessories
Table 20: Mounting accessories ordering information
Part Part number
Alignment tool 4084133
14 ACCESSORIES
66
O P E R A T I N G I N S T R U C T I O N S | deTec4 Core 8014253/ZOH3/2017-08-04 | SICK
Subject to change without notice

Table of Contents