EasyManua.ls Logo

SIEB & MEYER SD2S 0362X49xy - X15 - Digital Outputs

SIEB & MEYER SD2S 0362X49xy
114 pages
To Next Page IconTo Next Page
To Next Page IconTo Next Page
To Previous Page IconTo Previous Page
To Previous Page IconTo Previous Page
Loading...
Related topics
Connection example: "safety circuit (STO)", page 56
Safety function STO: "Safety Circuit / Restart Lock (STO)", page 95
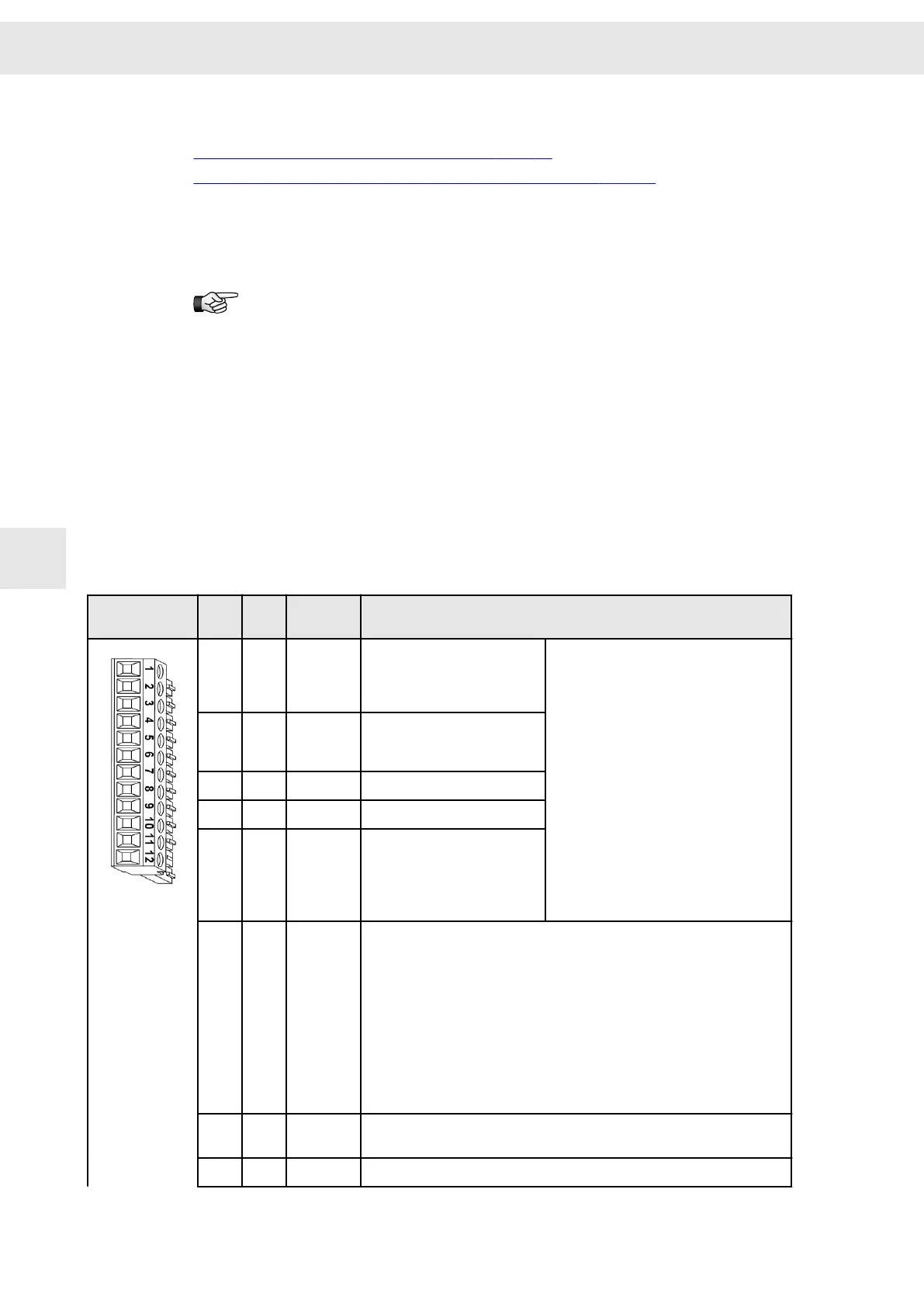
7.7 X15 – Digital Outputs
If you want to make use of the digital inputs and outputs, connect pin 9 to
24 V. You can either bridge 24 V from pin 10 of X15 (max. 0.3 A) or you
supply 24 V from an external voltage source.
In order to display the error status still after deliberately disconnecting the
mains supply, you can maintain the logic supply by connecting pin 8 to 24 V
(0.5 A).
The available functions of the digital outputs are different depending on the drive func‐
tion. You can set the desired function in the software
drivemaster2
.
7.7.1 Digital Outputs – SERVO / VECTOR
12-pole Mini-Combicon connector, suitable for mating connector MC 1,5/ 12-ST-3,81
(Phoenix)
Mating connector
X15
Pin I/O Name Configurable functions
1 O OUT0 Ready type 1 (with power
supply okay)
Ready type 2 (without
power supply okay)
No function
M01 Message power output stage
ready
M02 – Message operation enabled
M03 – Message drive error
M10 – Ref. value reached
M11 – Torque reached
W04 – Power output stage load
W05 – Motor load
W07 – Motor temperature
W09 Undervoltage power output
stage
W11 – Tracking error
W12 – Speed error
W17 – No commutation
W24 – Warning threshold ’current'
W26 Warning threshold ’overload
current'
2 O OUT1 Signal motor holding
brake
M12 – Speed zero
3
O OUT2 M12 – Speed zero
4 O OUT3 M12 – Speed zero
5 O OUT4 M12 – Speed zero
6 I IN8 No function
Speed direction
P-controller
Error reset
External hardware OK
Low gain Kpn
Docking function
Teach no-load current
Parameter set Bit 5
MOP up
MOP down
Reset commutation
7 O PULSE
OUT
Speed pulses
8 I VCC EXT 24 V logic supply in the event of an AC power failure (0.5 A)
Connector Pin Assignment
W
40 Drive System SD2S - Hardware Description 0362X49xy / 0362129xy
7

Table of Contents

Related product manuals