EasyManua.ls Logo

Siemens MICROMASTER 420 - Block Diagram; Fig. 3-11 MICROMASTER 420 - Block Diagram

Siemens MICROMASTER 420
190 pages
To Next Page IconTo Next Page
To Next Page IconTo Next Page
To Previous Page IconTo Previous Page
To Previous Page IconTo Previous Page
Loading...
3 Functions Issue 07/04
MICROMASTER 420 Operating Instructions
56 6SE6400-5AA00-0BP0
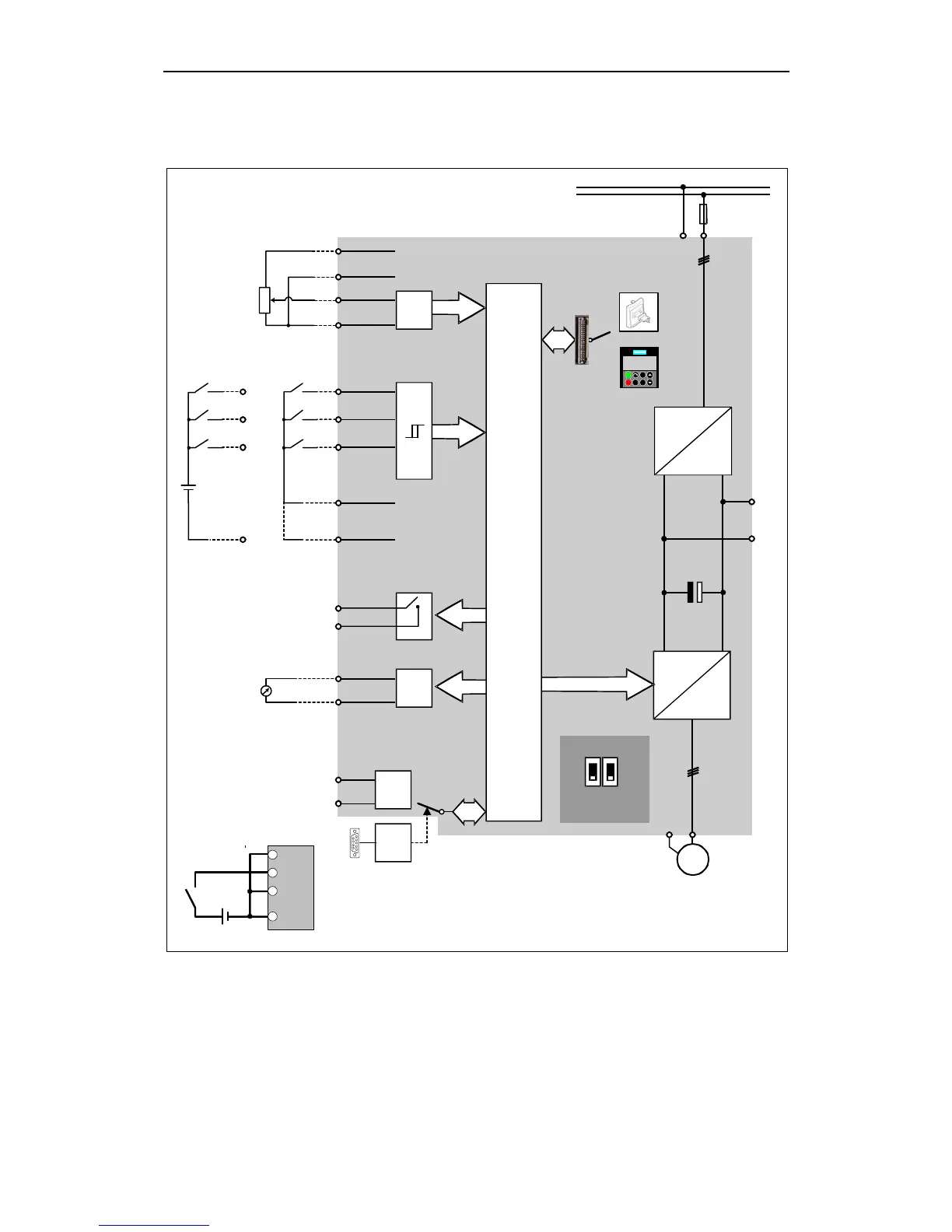
3.3 Block diagram
PE
1/3 AC 200 - 240 V
3 AC 380 - 480 V
SI
PE
L/L1, N/L2
L/L1, N/L2, L3
L1, L2, L3
=
3 ~
PE
U,V,W
M
A/D
+10 V
0 V
0 - 20 mA
max. 500
CPU
RS485
D/A
~
=
ADC+
ADC-
DIN1
DIN2
DIN3
DAC+
DAC-
P+
N-
RL1-B
RL1-C
1
2
3
4
5
6
7
8
9
12
13
14
15
10
11
4.7 k
Output 0 V
max. 100 mA
(isolated)
30 V DC / 5 A (resistive)
250 V AC / 2 A (inductive)
Relay
Output +24 V
max. 100 mA
(isolated)
DC-link connection
or
or
CB
Option
automatic
DC+
DC
DIN4
2
3
4
9
24 V
-+
The analog input circuit can be
alternatively configured to
provide an additional digital
input (DIN4):
12
60 Hz
50 Hz
DIP switch
Not
used
BOP link
COM link
Jog
0
I
P
Fn
Hz
150.00
BOP/AOP
RS232
DIN1
DIN2
DIN3
5
6
7
9
External 24 V
NPN
PNP
or
24 V
+
_
Fig. 3-11 MICROMASTER 420 – block diagram

Table of Contents

Other manuals for Siemens MICROMASTER 420

Related product manuals