EasyManua.ls Logo

Siemens PM240-2 - Page 101

Siemens PM240-2
132 pages
Print Icon
To Next Page IconTo Next Page
To Next Page IconTo Next Page
To Previous Page IconTo Previous Page
To Previous Page IconTo Previous Page
Loading...
Spare parts and accessories
8.2 Optional accessories
Power Module PM240-2
Hardware Installation Manual, 12/2015, A5E33294624B AD
101
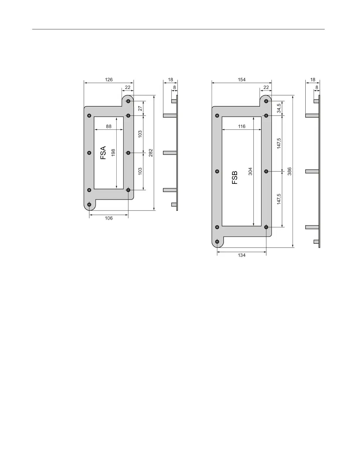
Dimension drawings
Figure 8-1 Mounting frames_FSA - FSB

Table of Contents

Related product manuals