EasyManua.ls Logo

Siemens PM240-2 - Motor Cable Length

Siemens PM240-2
132 pages
Print Icon
To Next Page IconTo Next Page
To Next Page IconTo Next Page
To Previous Page IconTo Previous Page
To Previous Page IconTo Previous Page
Loading...
Connecting-up
5.1 Line and motor connection
Power Module PM240-2
Hardware Installation Manual, 12/2015, A5E33294624B AD
43
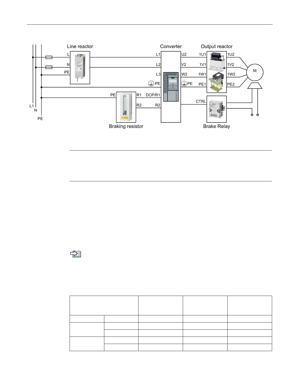
Figure 5-6 Connecting PM240-2 Power Modules, 200 V to 1 AC - only FSA ... FSC
Note
Connecting PM240-2 Power Modules, 200 V to 1 AC - only FSA ... FSC
For
the 200 V versions and single-phase line systems, connect the phase conductor and
neutral conductor to any two of the terminals L1, L2, L3.
5.1.4
Motor cable length
Always dimension the motor cable so that the ohmic losses are less than 5 % of the inverter
power rating.
The permissible length of the motor cable also depends on the quality of the motor cable and
the inverter pulse frequency. The values specified below are applicable for high quality
cables, such as CY100 or similar, and for the pulse frequencies set in the factory.
Pulse frequencies (Page 86).
If you set other pulse frequencies, then you must ensure that the EMC category is complied
with on the plant or system side.
Table 5- 1 Maximum permissible motor cable length (m) for inverters with integrated filter and
shielded cables
Frame size
First/second envi-
ronment,
EMC Category C2
Second environ-
ment, EMC category
C3
No EMC category
FSA … FSC
200 V / 400 V
50
50
50
FSD … FSE
200 V / 400 V
150
150
200
690V
100
100
200
FSF
200 V / 400 V
150
150
200
690V
---
100
200

Table of Contents

Related product manuals