EasyManua.ls Logo

Sony HCD-FL5D - Schematic Diagram - CD DOOR Section

Sony HCD-FL5D
156 pages
Print Icon
To Next Page IconTo Next Page
To Next Page IconTo Next Page
To Previous Page IconTo Previous Page
To Previous Page IconTo Previous Page
Loading...
HCD-FL5D
5757
R346 R345 R344 R343 R342
C341 C342 C343
C305
R315C303
CN317 CN312
CN313 NO814
CN314 NO815
S332
S341
D345 D344 D343 D342 D341
M301
CN309
R341
S331
IC302
R316
100 100 100 100 100
0.1 0.1 0.1
10
50V
470.1
8P 8P
3P 3P
2P 2P
SELS5923C SELS5923C SELS5923C SELS5923C SELS5923C
15P
10
BA6956AN
3.3k
12k
D GND
VOL 1A
VOL 1B
VRFE
OUT2
RNF
OUT1
VM
VCC
FIN
GND
RIN
LED B
LED A
LED2
LED4
LED3
CD DOOR POS
CD DOOR NEG
VCC
M GND
D GND
VOL 1A
VOL 1B
LED A
LED B
LED2
LED3
LED4
CD DOOR CLOSE
CD DOOR OPEN
CD DOOR LOCK
ROTARY ENCODER
VOLUME
INDICATOR INDICATOR INDICATOR INDICATOR INDICATOR
OPEN/CLOSE
(CHASSIS)
OPEN/CLOSE
DETECT
LOCK DETECT
OPEN/CLOSE
MOTOR DRIVE
DISC5 DISC4 DISC3 DISC2 DISC1
CD/DVD DOOR
CD/DVD DOOR
CD/DVD DOOR
CD/DVD DOOR
R340
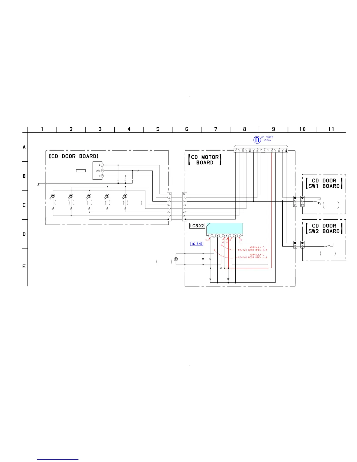
8-20. SCHEMATIC DIAGRAM – CD DOOR Section – See page 90 for IC Block Diagram.
•Voltages and waveforms are dc with respect to ground
under no-signal (detuned) conditions.
no mark : TUNER
(Page 79)

Table of Contents

Related product manuals