EasyManua.ls Logo

Tokheim Quantium 510 - Three Frames & Two Columns Models (THS 3-4, SVHS 3-4)

Tokheim Quantium 510
143 pages
Print Icon
To Next Page IconTo Next Page
To Next Page IconTo Next Page
To Previous Page IconTo Previous Page
To Previous Page IconTo Previous Page
Loading...
Page 3-4
Document Ref 942583-001 Rev 8
Drawings Quantium 510 Installation Manual
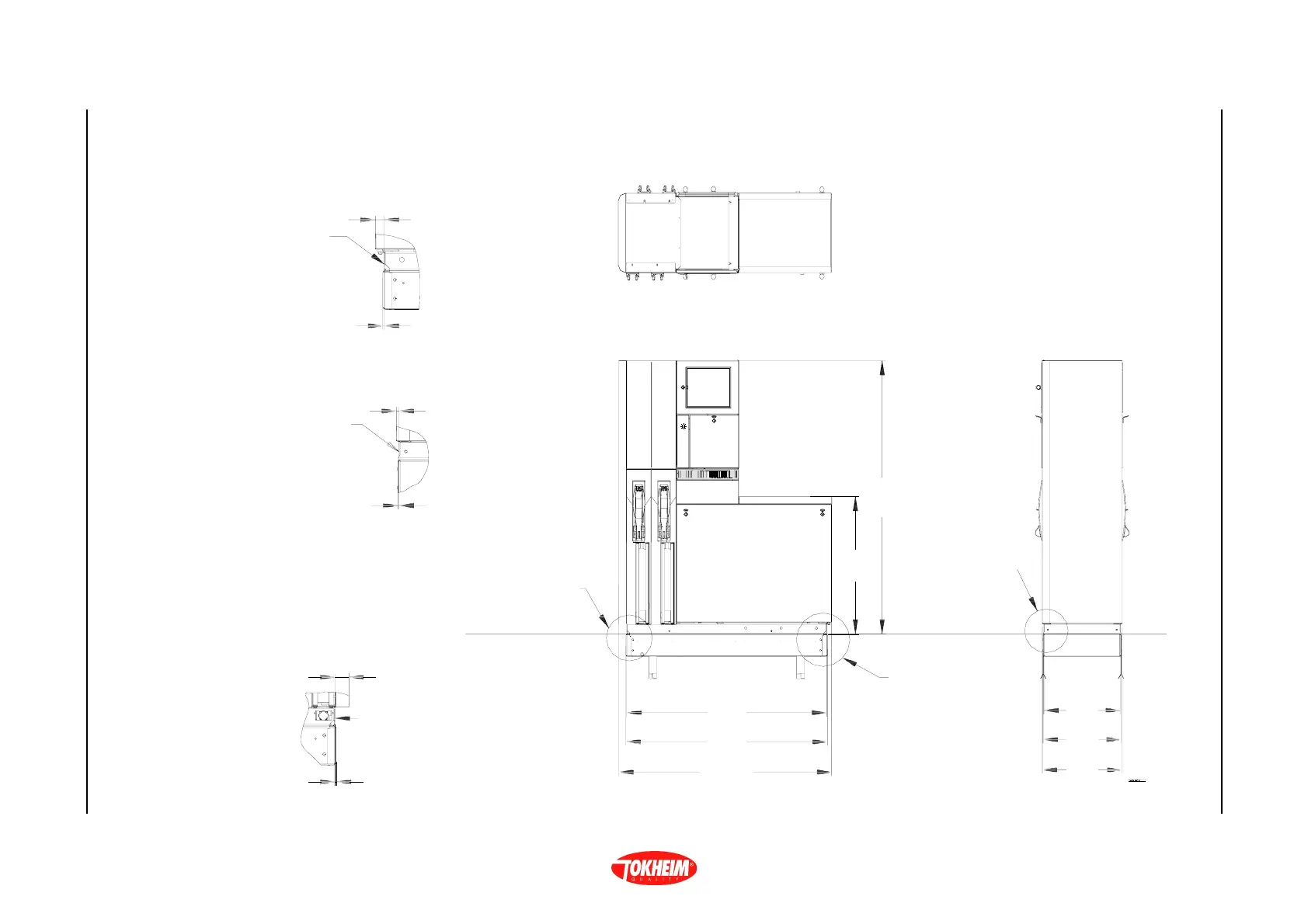
3.1.3 THREE FRAMES & TWO COLUMNS MODELS (THS 3-4, SVHS 3-4)
Cladding extent (column)
Edge of driptray base
Groundframe extent
Cladding extent (door)
Edge of driptray base
Groundframe extent
Cladding extent
(end panel)
Edge of driptray base
Groundframe extent
DETAIL A
DETAIL B
DETAIL C
Groundframe extent
Driptray extent
Cladding extent
B SIDE
A SIDE
SEE DETAIL A
SEE DETAIL B
SEE DETAIL C
Island Level
50
8.0
12
5.0
33.5
8.0
1305
1321
1388.5
500
510
520
900
1781

Table of Contents