EasyManua.ls Logo

Tokheim Quantium 510 - Master & Satellite Connections

Tokheim Quantium 510
143 pages
Print Icon
To Next Page IconTo Next Page
To Next Page IconTo Next Page
To Previous Page IconTo Previous Page
To Previous Page IconTo Previous Page
Loading...
Page 2-24 Document Ref 942583-001 Rev 8
Site Preparation Quantium 510 Installation Manual
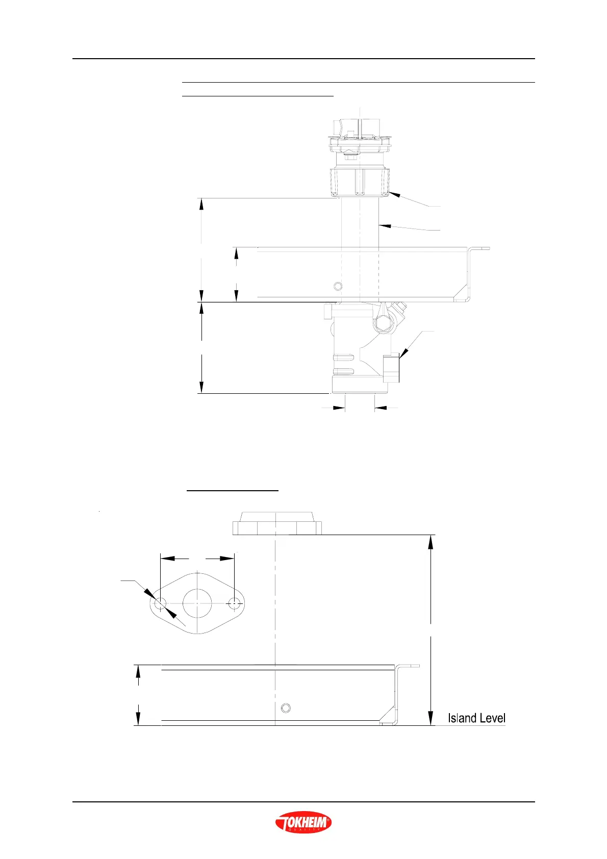
2.3.2 MASTER & SATELLITE CONNECTIONS
Master Connection
Ø12
Connection
Flange Level
78
185
Driptray
height
70
Submerged Connection with Shear Valve (Filterbox only) - Dispensers
Manufactured After May 2014
38
70
Island Level
117
Driptray
height
G1.5"
Shear Valve 901108
NEFIT NUT
Pipe 951639
165
Note: For model HSM5-8, the the height dimension from Island Level to Connection
Flange Level should be 85mm.

Table of Contents