EasyManua.ls Logo

Tokheim Quantium 510 - Four Frames & Three Columns Models (THS 4-6, SVHS 4-6)

Tokheim Quantium 510
143 pages
Print Icon
To Next Page IconTo Next Page
To Next Page IconTo Next Page
To Previous Page IconTo Previous Page
To Previous Page IconTo Previous Page
Loading...
Document Ref 942583-001 Rev 8
Page 3-7
Quantium 510 Installation Manual Drawings
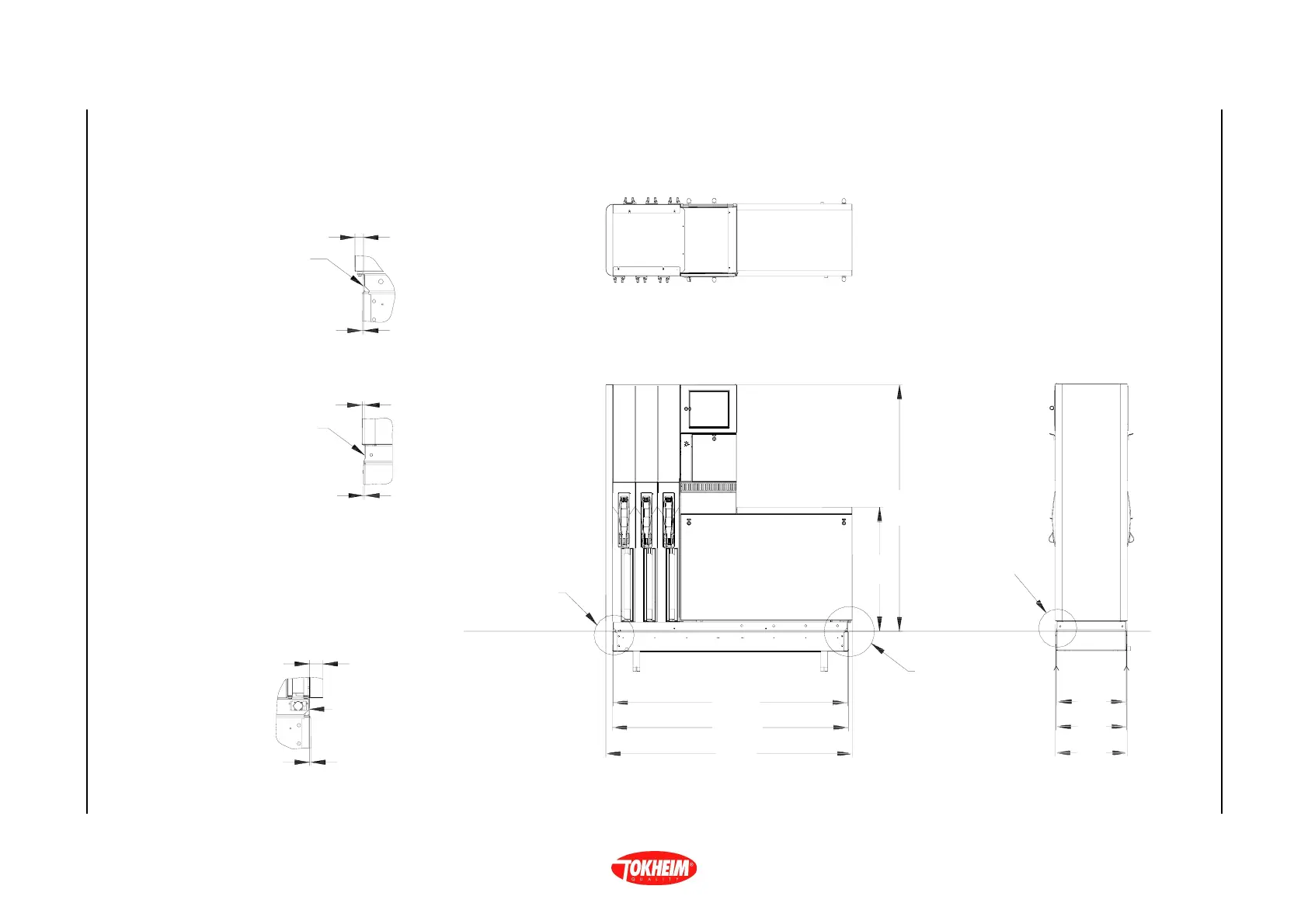
3.1.6 FOUR FRAMES & THREE COLUMNS MODELS (THS 4-6, SVHS 4-6)
Cladding extent (column)
Edge of driptray base
Groundframe extent
Cladding extent (door)
Edge of driptray base
Groundframe extent
DETAIL A
DETAIL B
50
8.0
12
5.0
Cladding extent
(end panel)
Edge of driptray base
Groundframe extent
DETAIL C
33.5
8.0
B SIDE
A SIDE
Groundframe extent
Driptray extent
Cladding extent
SEE DETAIL A
SEE DETAIL B
SEE DETAIL C
Island Level
500
510
520
1698.5
1714.5
1782
900
1781

Table of Contents