EasyManua.ls Logo

Tokheim Quantium 510 - Five Frames & Five Columns Models (5-10)

Tokheim Quantium 510
143 pages
Print Icon
To Next Page IconTo Next Page
To Next Page IconTo Next Page
To Previous Page IconTo Previous Page
To Previous Page IconTo Previous Page
Loading...
Page 3-10
Document Ref 942583-001 Rev 8
Drawings Quantium 510 Installation Manual
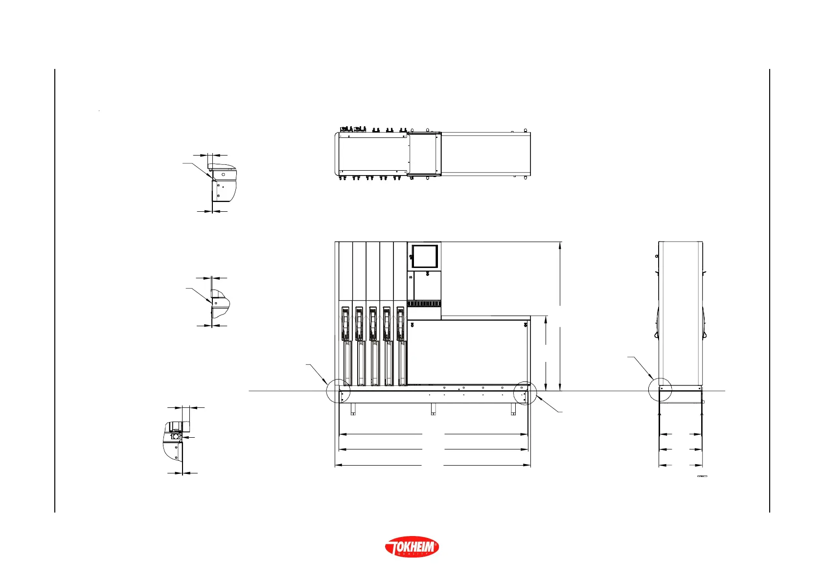
3.1.9 FIVE FRAMES & FIVE COLUMNS MODELS (5-10)
SEE DETAIL B
SEE DETAIL A
SEE DETAIL C
520
510
500
8.0
50
A SIDE
B SIDE
Island Level
Cladding Extent
Groundframe Extent
Driptray Extent
DETAIL A
Groundframe extent
Edge of driptray base
Groundframe extent
Edge of driptray base
12
Cladding extent (door)
5.0
DETAIL B
33.5
8.0
DETAIL C
Edge of driptray base
Groundframe extent
Cladding extent
(end panel)
Cladding extent (column)
900
1178
2340
2271
2255

Table of Contents