EasyManua.ls Logo

Trane Voyager - Dimensional Data - 3-25 Ton

Trane Voyager
92 pages
Print Icon
To Next Page IconTo Next Page
To Next Page IconTo Next Page
To Previous Page IconTo Previous Page
To Previous Page IconTo Previous Page
Loading...
86
Dimensional
Data
3-25 Ton
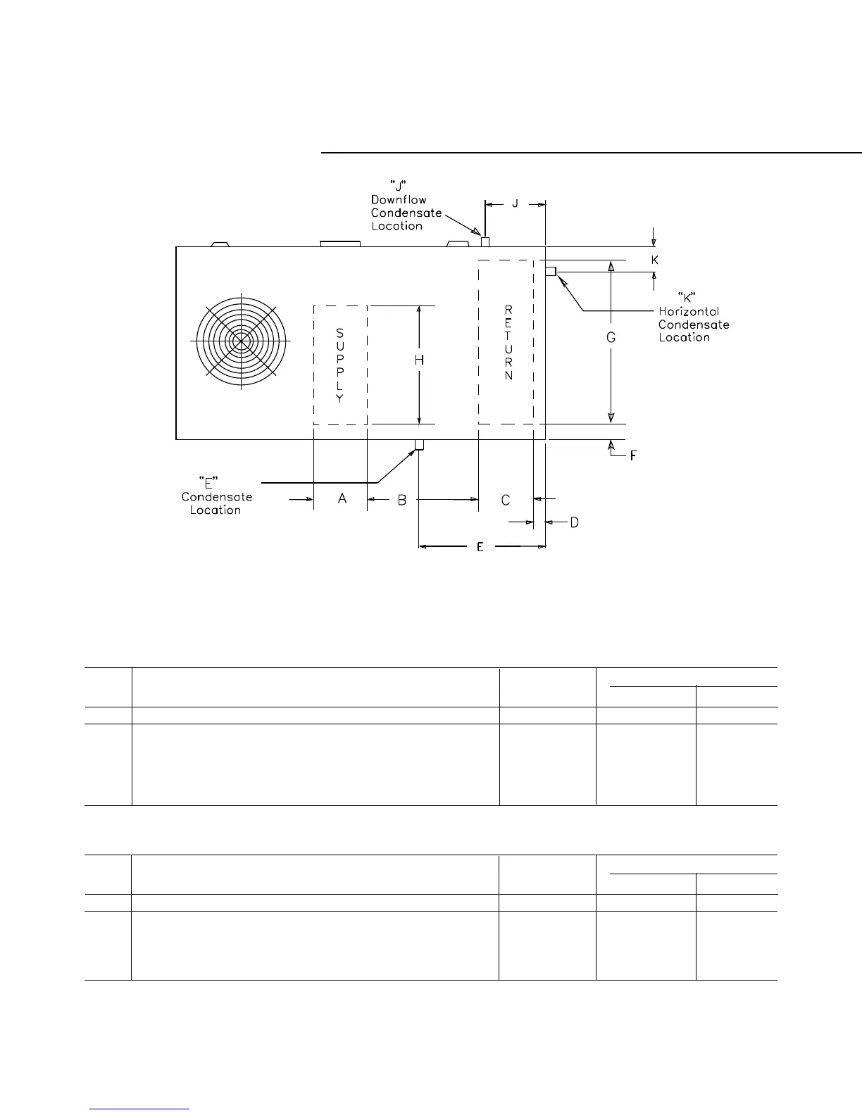
Table 86-1 Standard Efficiency Units
ABCDF GH EJEK
3, 4, 5 13
3/
16
22
3/
16
11
1/
4
2
7/
8
3
3/
8
39
7/
8
32
1/
4
3/
4
PVC 19½ 20
3/
8
6¼, 7½ 15
3/
16
22
1/
2
12
15/
16
3
1/
4
3
3/
8
42
7/
8
35
1/
4
3/
4
PVC 22 2
3/
16
8½, 10
1
15
3/
16
22
1/
2
12
15/
16
4
3/
16
3
3/
8
42
7/
8
35
1/
4
3/
4
PVC 22
7/
8
—28
3/
16
10
2
, 12½ 22
7/
16
14
1/
2
17
11/
16
4
1/
4
4
1/
4
54
13/
16
47
3/
16
1 NPT 24
5/
8
—16
15, 17½ 26
7/
16
22
1/
2
18
11/
16
4
1/
4
4
1/
4
62
7/
16
54
11/
16
1 NPT 25
5/
8
—6
20, 25 26
7/
16
28
3/
4
19
15/
16
4
1/
4
4
1/
4
76
5/
16
68
11/
16
1 NPT 26
3/
4
—5
3/
8
Condensate Drain LocationCondensate Drain Location
Condensate Drain LocationCondensate Drain Location
Condensate Drain Location
Condensate Condensate
Condensate Condensate
Condensate
Drain Size Drain Size
Drain Size Drain Size
Drain Size
Downflow OnlyDownflow Only
Downflow OnlyDownflow Only
Downflow Only
TonsTons
TonsTons
Tons
DownflowDownflow
DownflowDownflow
Downflow
Table 86-2 High Efficiency Units
ABCDF GH EJEK
3, 4, 5 13
3/
16
22
3/
16
11
1/
4
2
7/
8
3
3/
8
39
7/
8
32
1/
4
3/
4
PVC 19½ 20
3/
8
5,6,7,7½ 15
3/
16
22
1/
2
12
15/
16
3
1/
4
3
3/
8
42
7/
8
35
1/
4
3/
4
PVC 22 2
3/
16
22
7/
16
14
1/
2
17
11/
16
4
1/
4
4
1/
4
54
13/
16
47
3/
16
1 NPT 24
5/
8
—16
10, 12½ 26
7/
16
22
1/
2
18
11/
16
4
1/
4
4
1/
4
62
7/
16
54
11/
16
1 NPT 25
5/
8
—6
15-25 26
7/
16
28
3/
4
19
15/
16
4
1/
4
4
1/
4
76
5/
16
68
11/
16
1 NPT 26
3/
4
—5
3/
8
1. 10 Ton Low and Medium Heat Models.
2. 10 Ton High Heat Models.
Condensate Drain LocationCondensate Drain Location
Condensate Drain LocationCondensate Drain Location
Condensate Drain Location
Condensate Condensate
Condensate Condensate
Condensate
Drain Size Drain Size
Drain Size Drain Size
Drain Size
Downflow OnlyDownflow Only
Downflow OnlyDownflow Only
Downflow Only
TonsTons
TonsTons
Tons
DownflowDownflow
DownflowDownflow
Downflow
HorizontalHorizontal
HorizontalHorizontal
Horizontal

Table of Contents

Related product manuals