EasyManua.ls Logo

Ulma ENKOFORM VMK - Page 68

Default Icon
82 pages
Print Icon
To Next Page IconTo Next Page
To Next Page IconTo Next Page
To Previous Page IconTo Previous Page
To Previous Page IconTo Previous Page
Loading...
ENKOFORM VMK
Construcción
68
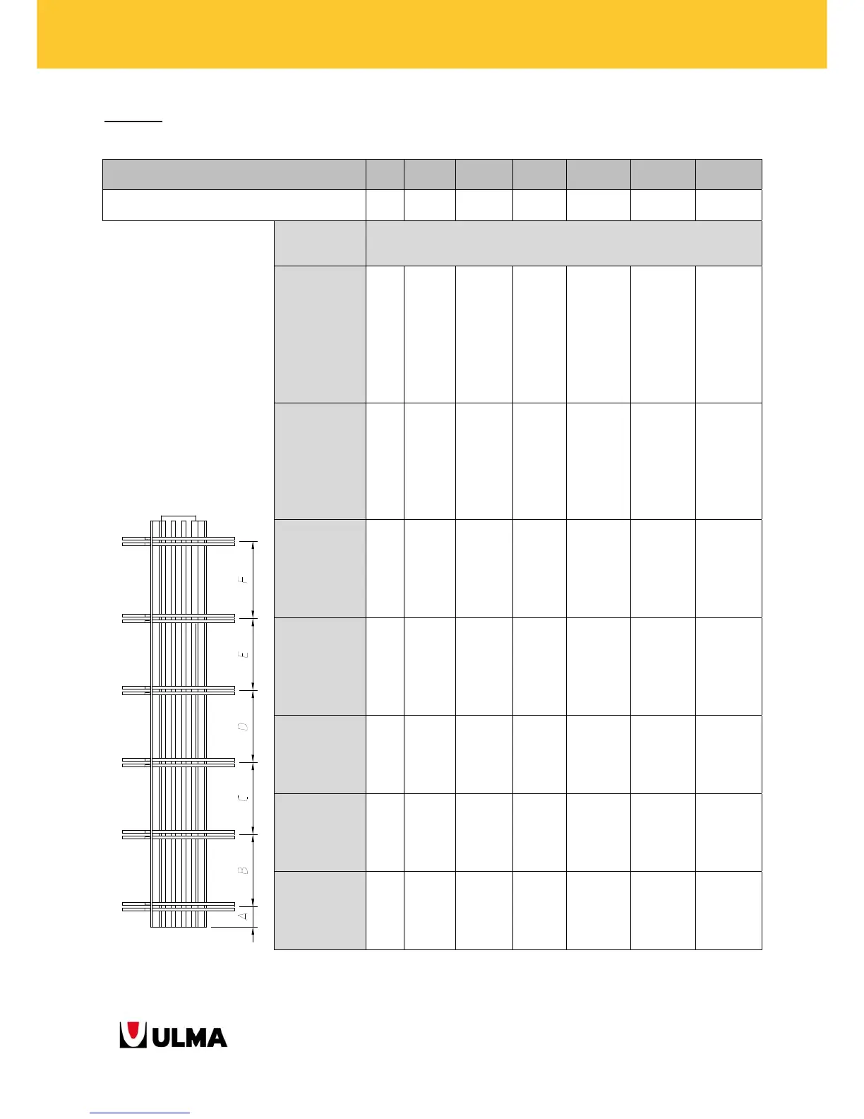
ENKOFORM VMK
80kN/m
2
Column dimensions [cm]
70/70 80/80 90/90 100/100 110/110 120/120
Number of beams on each side 5 5 5 6 7
Column
height [m]
Gap between WALERS [m]
6
F
1,10 1,10 1,15
E
1,35 1,35 1,35 1,00 1,00 1,00
D
1,10 1,10 1,10 0,90 0,90 0,90
C
1,05 1,05 1,05 0,90 0,90 0,85
B
1,00 1,00 1,00 0,85 0,85 0,85
A
0,40 0,40 0,40 0,30 0,30 0,30
5
E
1,20 1,20 1,15
D
1,35 1,40 1,40 1,00 1,00 0,95
C
1,10 1,10 1,10 0,90 0,90 0,85
B
1,05 1,00 0,95 0,85 0,85 0,80
A
0,40 0,40 0,40 0,35 0,35 0,35
4,6
D
1,25 1,25 1,25 1,25 1,25 1,30
C
1,00 1,00 1,00 1,05 1,05 1,00
B
0,90 0,90 0,90 0,90 0,90 0,90
A
0,40 0,40 0,40 0,35 0,35 0,35
4
D
1,10 1,10 1,10
C
1,40 1,40 1,40 0,90 0,90 0,90
B
1,10 1,10 1,10 0,80 0,80 0,80
A
0,40 0,40 0,40 0,35 0,35 0,35
3,7
C
1,25 1,30 1,30 1,30 1,30 1,30
B
1,00 1,00 1,00 1,00 1,00 1,00
A
0,40 0,40 0,40 0,35 0,35 0,35
3,4
C
1,15 1,15 1,20 1,20 1,15
B
1,60 0,90 1,10 0,95 0,95 0,95
A
0,40 0,40 0,40 0,35 0,35 0,35
3
C
1,05 1,05 1,05
B
1,40 1,40 1,40 0,80 0,80 0,80
A
0,40 0,40 0,40 0,30 0,30 0,30

Table of Contents

Related product manuals