EasyManua.ls Logo

Waupaca Paca-Ryde - Stabilizer Bracket Adjustment & Sling Extension Installation

Default Icon
72 pages
Print Icon
To Next Page IconTo Next Page
To Next Page IconTo Next Page
To Previous Page IconTo Previous Page
To Previous Page IconTo Previous Page
Loading...
1726 North Ballard Road, Suite 1 - Appleton, WI 54911 - 920.991.9082
Technical Support 855.804.5774 - Parts@waupacaelevator.com
PTM30117-G
14 MAR 2018
W
E
CRUSH
HAZARD
CUTTING
HAZ ARD
CRUSH
HAZARD
CRUSH
HAZARD
FALLING
HAZ ARD
CRUSH
HAZARD
PINCH
HAZ ARD
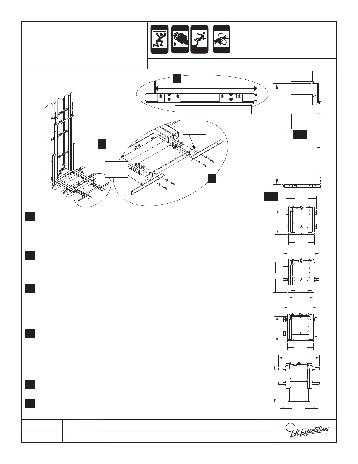
1. If you previously mounted the front sling extension arms, determine car AB
dimension (reference  eld drawings for the AB dimension). Subtract 4” from the AB
dimension and adjust the front sling extension arms equally to extend out to this
numerical value. The car  oor will hang over the extension. The maximum the car
oor can hang o the edge of the sling is 3-3/16”.
2. Fasten the previously removed sling extension plate assembly onto the sling
extension arms with the following previously removed hardware:
(4) - 3/8” Flat Washers
(4) - 3/8” Nylock Nuts
3. If you previously mounted the side extensions determine car DA dimension
(reference  eld drawings for the DA dimension). Subtract 4” from the DA dimension
and adjust the side extensions equally to extend out to this numerical value. The
car  oor will hang over the extensions 2” on each side. The maximum the car  oor
can hang o the edge of the sling is 3-3/16”. Reference the side extension
con gurations shown above to best suit the car.
4. Loosen hardware holding sling extension feet. (May need to remove and reinstall
to obtain proper alignment) Position the sling extension feet on the sling extension
plate by aligning the feet edge with side extensions if provided. Fasten in place
with the following previously loosened or removed hardware:
(4) - 3/8”-16 x 1-1/2” Bolts
(8) - 3/8” Flat Washers
(4) - 3/8” Nylock Nuts
5. Determine the overall car height by adding the  oor thickness + wall height +
ceiling thickness = overall car height.
6. Loosen the hardware securing the stabilizer arms, but do not remove. Slide the car
stabilizer arms to the height previously determined in step 5 and secure in place.
A
BC
D
56.75”
B
A
C
D
A
BC
D
A
BC
D
42.40”
49.38”
42.08”
51.58”
53.00”
35.08”
36.00”
47.13”
36.00”
35.08”
36.00”
OVERALL
CAB
HEIGHT
STABILIZER
BRACKET
STABILIZER
ARM
2.
3.
4.
5.
6.
1.
2
3, 4
5, 6
STABILIZER BRACKET
ADJUSTMENT & SLING
EXTENSION INSTALLATION
SERIES : 115, 116, 118
FRONT SLING EXTENSION ARM
(AB DIMENSION - 4”)
SLING
EXTENSION
PLATE
SLING
EXTENSION
FEET
1
1
Page 27

Table of Contents

Related product manuals