EasyManua.ls Logo

Waupaca Paca-Ryde - Emergency Light Installation and Fuse Installation

Default Icon
72 pages
Print Icon
To Next Page IconTo Next Page
To Next Page IconTo Next Page
To Previous Page IconTo Previous Page
To Previous Page IconTo Previous Page
Loading...
1726 North Ballard Road, Suite 1 - Appleton, WI 54911 - 920.991.9082
Technical Support 855.804.5774 - Parts@waupacaelevator.com
PTE10043-F
12 FEB 2018
W
E
CRUSH
HAZARD
CUTTING
HAZARD
CRUSH
HAZARD
CRUSH
HAZARD
CRUSH
HAZARD
CRUSH
HAZARD
ELECTRIC
HAZARD
FALLING
HAZARD
CRUSH
HAZARD
PINCH
HAZARD
ANTI-
STATIC
ALERT
VERIFY POWER IS OFF” AT THE CONTROLLER AND DISCONNECT!
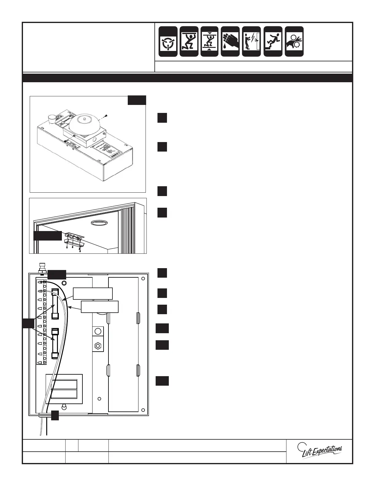
1. Place car top assembly on the top of the car and center
(Reference Modular Wiring Car Top Page)
2. Remove cover with alarm bell attached by removing (2) sheet
metal screws and placing to the side for use later
*If COP has a built-in e-light, skip to step 11
3. Remove black and white emergency light wires from the
terminal block.
Note: The location of the wires and slide through the bushing
on the box.
4. Remove light cover by removing (2) pan head screws and
place o to the side for use later.
5. Place light against the interior car wall and ceiling to
determine location.
6. Remove light and mark wire location on wall or ceiling
depending on chosen mounting position, and drill 1/4” hole
through on mark. Verify the wire length is long enough to
reach the alarm box.
7. Feed emergency light wires through 1/4” hole to alarm box
and through the bushing into the alarm box.
8. Fasten light  xture into place with appropriate hardware.
9. Fasten cover to light  xture with (2) pan head screws
previously removed.
10. Fasten black wire to terminal 1 and white wire to terminal 2.
11. Install (2) provided fuses into circuit board.
Note: The battery will drain when the power is not supplied to
the unit.
12. Fasten alarm cover onto box with (2) previously removed sheet
metal screws.
13. Finish car top wiring and elevator installation. When the
installation is complete press the test switch to test light
operation. Allow up to 10 hours for battery to charge before
testing.
EMERGENCY LIGHT AND
FUSE INSTALLATION
SERIES : 008, 114, 115, 116, 118, 021, 022, 210
2.
3.
8.
9.
10.
11.
12.
4.
5.
Black Wire
White Wire
7.
3, 10
2, 12
4, 5, 8, 9
7
11
Page 59

Table of Contents

Related product manuals