EasyManua.ls Logo

Waupaca Paca-Ryde - Verify Jack Travel

Default Icon
72 pages
Print Icon
To Next Page IconTo Next Page
To Next Page IconTo Next Page
To Previous Page IconTo Previous Page
To Previous Page IconTo Previous Page
Loading...
1726 North Ballard Road, Suite 1 - Appleton, WI 54911 - 920.991.9082
Technical Support 855.804.5774 - Parts@waupacaelevator.com
PTM30140-D
22 MAR 2018
W
E
CRUSH
HAZARD
CUTTING
HAZ ARD
CRUSH
HAZARD
CRUSH
HAZARD
CRUSH
HAZARD
CRUSH
HAZ ARD
ECO-SYSTEM
HAZ ARD
ELECTRIC
HAZ ARD
FALLING
HAZ ARD
CRUSH
HAZARD
KINK
HAZ ARD
CRUSH
HAZARD
PINCH
HAZ ARD
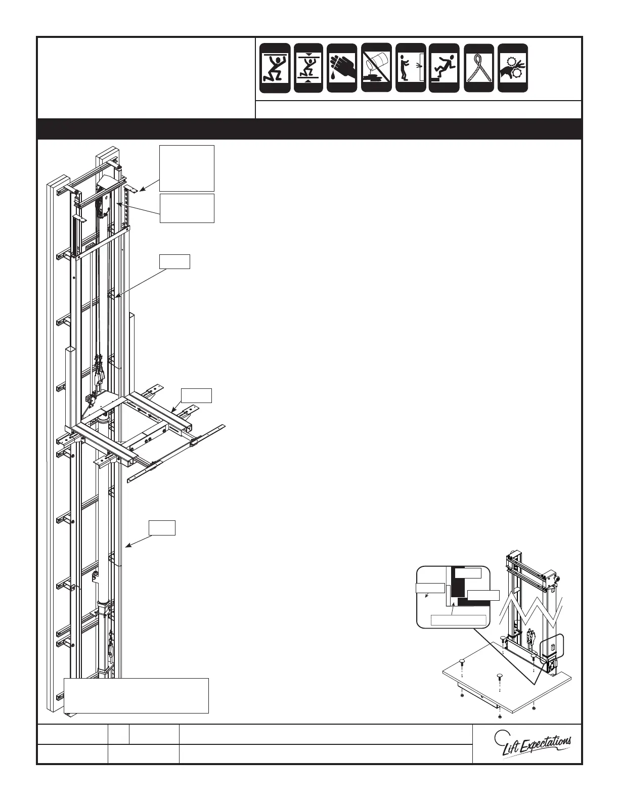
Note: Weight on the sling may be needed for downward direction to verify steps below.
Rail
Sling
Car
Stabilizer
Bracket
Jack
Ram
Header
1.
2.
3.
4.
5.
6.
7.
8.
9.
A.
B.
10.
SLING
WALL
FLOOR
CLEARANCE
SERIES 114 SHOWN FOR
ILLUSTRATIVE PURPOSES
SERIES : 116
VERIFY JACK TRAVEL
Verify the sling does not collide or come in contact with
anything along travel of the elevator.
At the top landing check to see if you have 4” of over travel. At
the bottom landing check to see if you have 2” of under travel.
If you do not have both, you need to adjust the rope length
and test again.
Verify the ram header guide blocks do not come in contact
with the sling guide block while jack is at max extension.
If needed adjust the top  nal into its permanent
position.
Bypass  nal to verify jack will ring out before ram header
collides with the end plates of the J-rail.
Locate the dead side of the wire rope, cut wire rope as close
as possible above highest wire rope clamp at a perpendicular
angle and secure wire ropes together
(Reference Proper Handling of Wire Rope page).
Verify the anti-rotation brackets are installed in the shackles
and secure.
TEST SAFETIES FOR PROPER OPERATION BEFORE
CONTINUING INSTALLATION.
Raise jack to full length of travel and check oil level in
the pump with attached dip stick. Ensure oil level is
maintained between the indented marks provided on stick.
We recommend the hydraulic oil level be checked and
maintained semi-annually.
To Install the elevator car  oor, follow these steps below.
Walls on all cars except the
Designer hang past the
car  oor. Before fastening
oor to sling be sure to
allow enough clearance
between car  oor and
sling upright.
Drill a least (4) holes
and bolt  oor to sling
using provided hardware
(Verify clearance between
car  oor and all hoistway walls.
Refer to  eld drawings for details).
Page 28

Table of Contents

Related product manuals