EasyManua.ls Logo

WinGD W-X82 - Page 460

WinGD W-X82
548 pages
Print Icon
To Next Page IconTo Next Page
To Next Page IconTo Next Page
To Previous Page IconTo Previous Page
To Previous Page IconTo Previous Page
Loading...
Operation80161/A1
Winterthur Gas & Diesel Ltd.
8/ 12
DTDT
DT
DT
DT
OI
27
38
16
41 39
40
28
8
11 46
24
21
22
7
31
25
13
15
1
14
4726
2
10
CL
45
PLANT
ENGINE
ENGINE PLANT
DT
44
3019
20
3030
3036
3037
3033
309
3043
306
3042
3035
3034
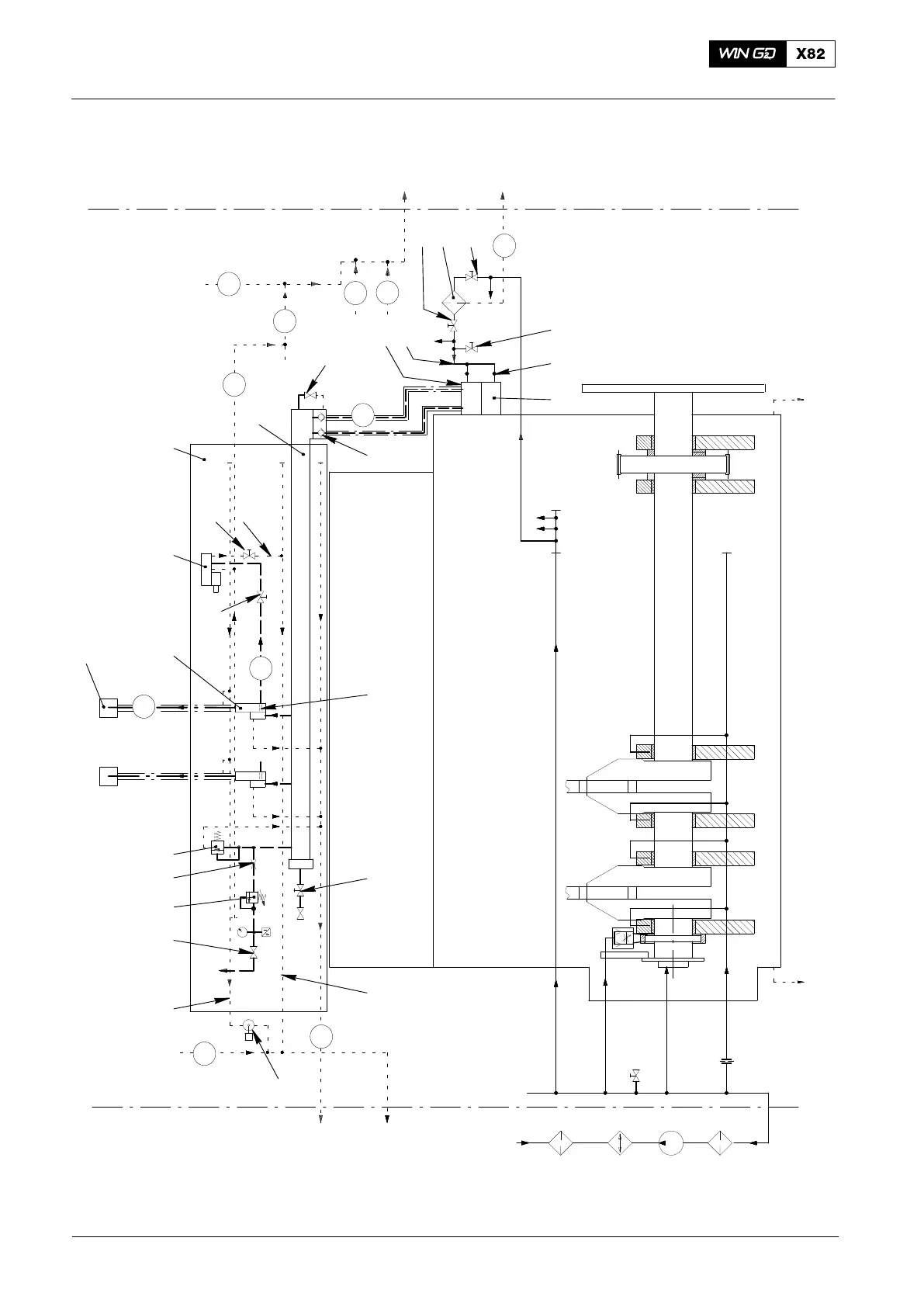
Fig. 3: Servo Oil System
2014
Lubricating Oil System 6-cylinders to 8-cylinders

Table of Contents

Related product manuals