EasyManua.ls Logo

Yamaha F50F - Shimming (F50, F60)

Yamaha F50F
305 pages
Print Icon
To Next Page IconTo Next Page
To Next Page IconTo Next Page
To Previous Page IconTo Previous Page
To Previous Page IconTo Previous Page
Loading...
6C13G11
6-22
1
2
3
4
5
6
7
8
9
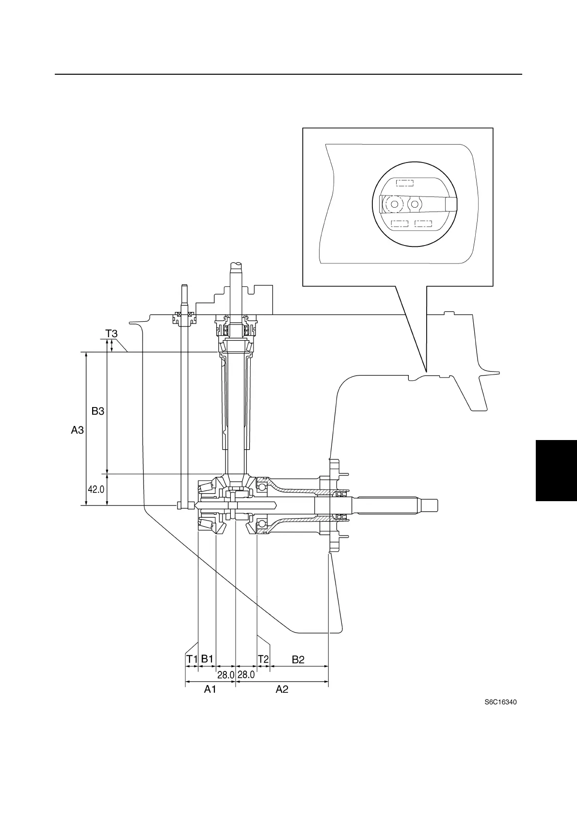
Shimming (F50, F60)
6
Drive shaft and lower case (F50, F60) / Shimming (F50, F60)

Table of Contents

Other manuals for Yamaha F50F

Related product manuals