EasyManua.ls Logo

YASKAWA SGMGV - Three-Phase 400 V SGDV-280 D01 A, -370 D01 A Models

YASKAWA SGMGV
400 pages
Print Icon
To Next Page IconTo Next Page
To Next Page IconTo Next Page
To Previous Page IconTo Previous Page
To Previous Page IconTo Previous Page
Loading...
1 Outline
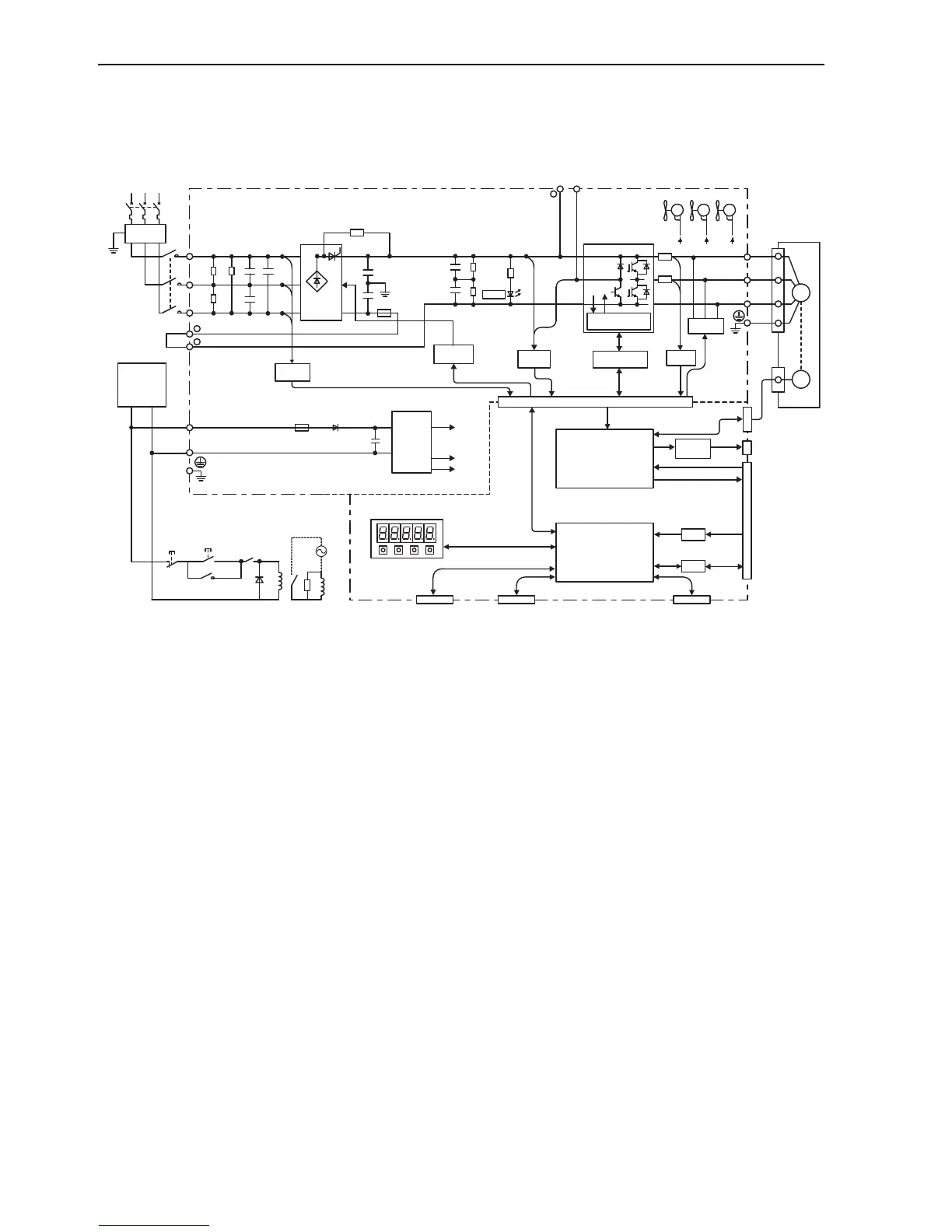
1.4.15 Three-phase 400 V SGDV-280D01A, -370D01A Models
1-14
1.4.15 Three-phase 400 V SGDV-280D01A, -370D01A Models
Three-phase
380 to 480 V
(50/60 Hz)
10%
15%
1KM
L1
B1/ B2
L2
L3
1
2
+24V
0V
U
V
W
CN3
CN2
ENC
A/D
I/O
CN1
CN5
M
CHARGE
CN7 CN8
+15V × 4
2RY
2RY
1KM
1KM
Control
Power
Supply
(+24 V)
Not included
r12V
+5V
+24 V +24 V +24 V
Noise
filter
Current
sensor
Dynamic
brake circuit
High speed
diode
Power
OFF
Power
ON
Open during
servo alarm
(1RY)
Gate
drive
Voltage
sensor
Voltage
sensor
Varistor
ASIC
(PWM control, etc.)
CPU
(Position/speed
calculation, etc.)
Panel operator
Digital operator
Encoder output
pulse
Analog monitor
output
Reference pulse
input
Speed/torque
reference input
I/O signal
Analog
voltage
converter
Personal
computer
Signal for safety fuction
Control
power
supply
AC power
supply
(100 V/200 V)
Surge
absorber
Overheat protector
overcurrent protector
Fan1 Fan2 Fan3
Thyristor
drive
Servomotor

Table of Contents

Related product manuals