EasyManua.ls Logo

YASKAWA SGMGV - Connection to Host Controller; Example of Connection to MP2200;MP2300 Motion Module SVA-01

YASKAWA SGMGV
400 pages
Print Icon
To Next Page IconTo Next Page
To Next Page IconTo Next Page
To Previous Page IconTo Previous Page
To Previous Page IconTo Previous Page
Loading...
11 Appendix
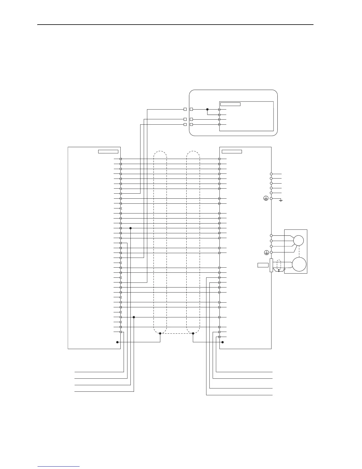
11.1.1 Example of Connection to MP2200/MP2300 Motion Module SVA-01
11-2
11.1 Connection to Host Controller
The following figures show the connection examples to host controllers.
11.1.1 Example of Connection to MP2200/MP2300 Motion Module SVA-01
Note 1. Connection cables (model: JEPMC-W2040-) to connect the SERVOPACK to the MP2200/MP2300 are pre-
pared by Yaskawa. For details, refer to Machine Controller MP2200/2300 Motion Module User’s Manual
(SIEPC88070016).
2. The SERVOPACK incorporates a safety function to protect people from the hazardous operation of the movable
parts of the machines, reduce the risk, and ensure the safety of the machine in operation.
Necessary circuits and settings are required to use this function. For details, refer to 5.11 Safety Function.
AO_0 (NREF)
PAL
PCL
AI_0 (VTG)
0V (For 24V)
DO_2 (PCON)
DO_3
+24V
DI_2
(
ZERO/HOME LS
)
SG
PA
PC
SG
AO_1 (TREF)
0V (For 24V)
DO_4
DI_3 (P-OT)
DI_0 (SVALM)
SEN (5V)
DO_5 (For
VS866, SEN
)
PBL
AI-GND
0V (For 24V)
DO_1 (ALMRST)
+24V
DI_5 (EXT/DEC)
SG
AI_1 (TMON)
PB
SG
AO-GND
0V (For 24V)
DO_0 (SV ON)
DI_4 (N-OT)
DI_1 (SRDY)
SG
V-REF
PA
/PA
PC
/PC
SG
T-REF
ALM
CN1/CN2
/C-SEL
(Control method switching)
CN1
P-OT
+24V IN
ALM+
ZERO/HOME LS input
P-OT input
N-OT input
EXT/DEC input
analog input
General-purpose
Analog input ground
TGON+ (/BRK+)
SG
SEN
/S-RDY-
PB
/PB
SG
/ALM RST
/S-ON
N-OT
/S-RDY+
BAT-
BAT+
Hood FG Connector shell
Brake interlock output (+)
Battery for absolute encoder (0V)
Battery for absolute encoder (3.6V)
Brake interlock output (-)
TGON- (/BRK-)
/P-CL (User setting)
/N-CL (User setting)
GND
GND
Analog monitor1
(torque reference monitor)
Analog monitor1
(torque reference monitor)
Analog monitor2
(torque reference monitor)
Analog monitor2
(torque reference monitor)
CN5
SGDV SERVOPACK
SGDV
MP2200/MP2300 series
SVA-01
manufactured by
Yaskawa Electric Coproration
Black
Black
White
Red
Analog monitor cable
(JZSP-CAS01)
1
2
3
4
5
6
7
8
9
10
11
12
13
14
15
16
17
18
19
20
21
22
23
24
25
26
27
28
29
30
31
32
33
34
35
36
2
5
33
34
19
20
6
9
32
41
45
46
42
47
31
10
4
35
36
28
27
1
30
44
40
43
29
21
22
1
2
3
4
CN2
L1C
L3
L2
L1
L2C
W
V
A (1)
B
(2)
C
(3)
D
(4)
U
Servomotor
M
Control power
supply
Main circuit power
supply
Encoder

Table of Contents

Related product manuals