EasyManua.ls Logo

ABB Robotics IRB 6790 - Page 70

ABB Robotics IRB 6790
668 pages
Print Icon
To Next Page IconTo Next Page
To Next Page IconTo Next Page
To Previous Page IconTo Previous Page
To Previous Page IconTo Previous Page
Loading...
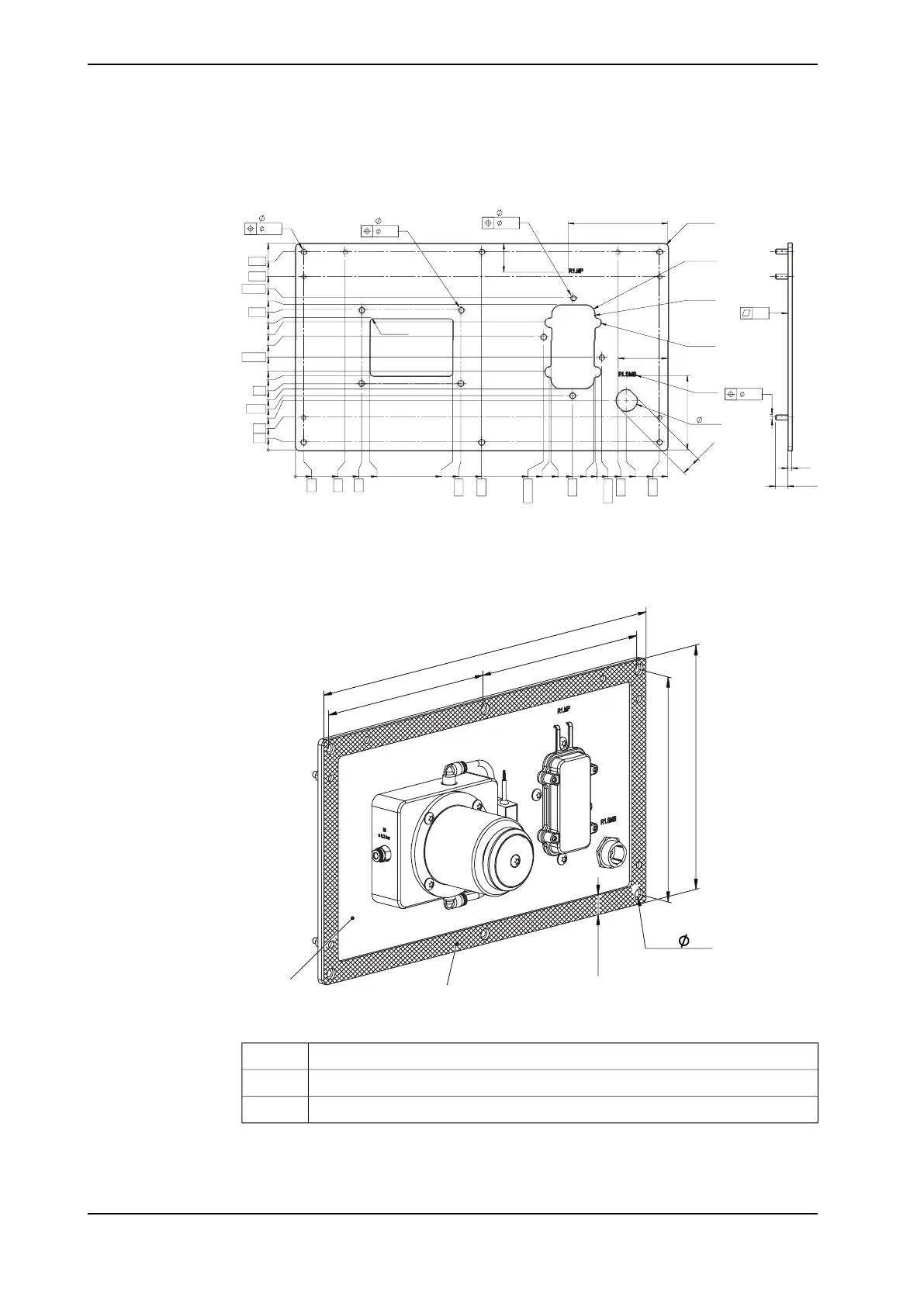
Dimension drawing of the interface plate
The connector point/interface plate.
4x R5
6x
7
4x
7
24,3
25,7
35
120
4x R11
8x R2
4x R6
4x
6,6
59,5
90
4x R5
0
10
80
60
90
190
200
225
299,7
307
309
335
361
363
370,2
390
400
440
450
0
10
40
60
65,8
80
73,8
90
95,1
112,2
137,9
155
160
170
176,3
184,3
210
240
250
Note 1
0,5
0,5
0,5
5
15 ±5
6x M6
0,8
0,4
xx1900002083
Gasket required on the interface plate
A gasket is required on the interface plate according to the figure.
B
A
2
30
4
5
0
2
1
5
250
2
1
5
2
0
6x
7
C
xx1700002199
Interface plateA
Gasket (attached with M6, 6 pcs)B
Gasket width dimensionC
Continues on next page
70 Product manual - IRB 6790
3HAC063331-001 Revision: B
© Copyright 2019 - 2020 ABB. All rights reserved.
2 Installation and commissioning
2.4.6 Installation requirements for Foundry Prime robots
Continued

Table of Contents

Related product manuals