EasyManua.ls Logo

ABB 265DS - Page 24

ABB 265DS
88 pages
Print Icon
To Next Page IconTo Next Page
To Next Page IconTo Next Page
To Previous Page IconTo Previous Page
To Previous Page IconTo Previous Page
Loading...
Design and function
24 265Dx, 265VS IM/265D/V-EN-02
It is possible to attach a tag plate in order to indicate the measuring points.
The "lower range value" and "upper range value" parameters can be set using "local" buttons. If
required, the buttons can be locked using the write protection switch.
The transmitter may be equipped with an LCD display that can be read from the front (optional,
can also be retrofitted).
The most important transmitter functions or data can be externally parameterized and
configured using the "local" control unit in conjunction with the LCD display (see the section
"Configuration").
M00157
1
2
3
4
5
6
7
8
9
11 12
13
14
#
+
10
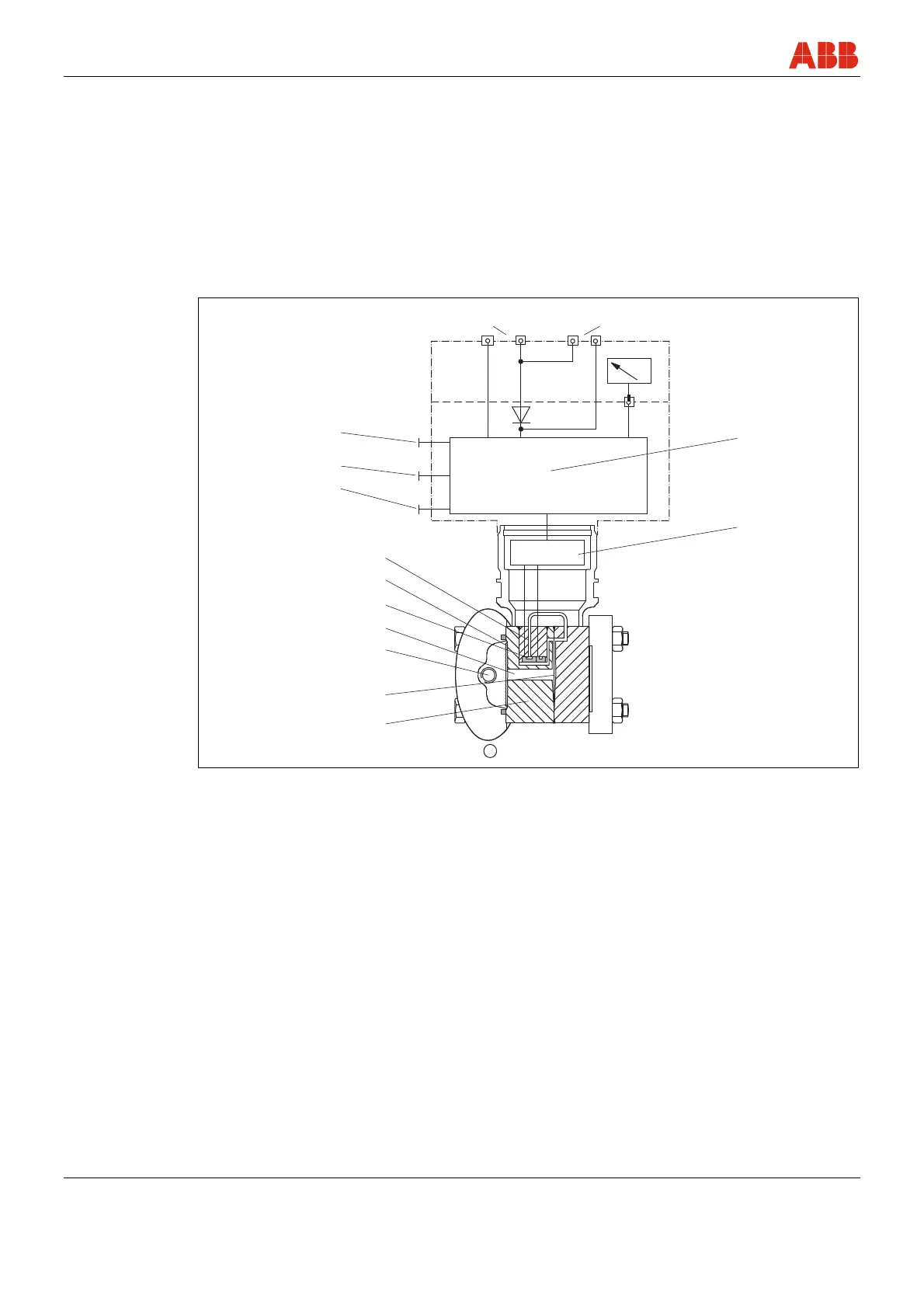
Fig. 5: 265Vx transmitter for absolute pressure
1 Measuring cell
2 Overload diaphragm
3 Process connection
4 Filling liquid
5 p
abs sensor
6 Isolating diaphragm
7 Reference vacuum
8 Write protection
9 Span
10 Lower range value
11 Output / power supply
12 Test instrument
13 Microprocessor-based electronics
14 Matching electronics
Pos: 10 /======= Seitenumbruch ======== @ 0\mod_1126532365768_3101.doc @ 3830

Table of Contents

Related product manuals