EasyManua.ls Logo

ABB ACS860 - Page 168

ABB ACS860
438 pages
Print Icon
To Next Page IconTo Next Page
To Next Page IconTo Next Page
To Previous Page IconTo Previous Page
To Previous Page IconTo Previous Page
Loading...
168 Parameters
25.02 Speed proportional
gain
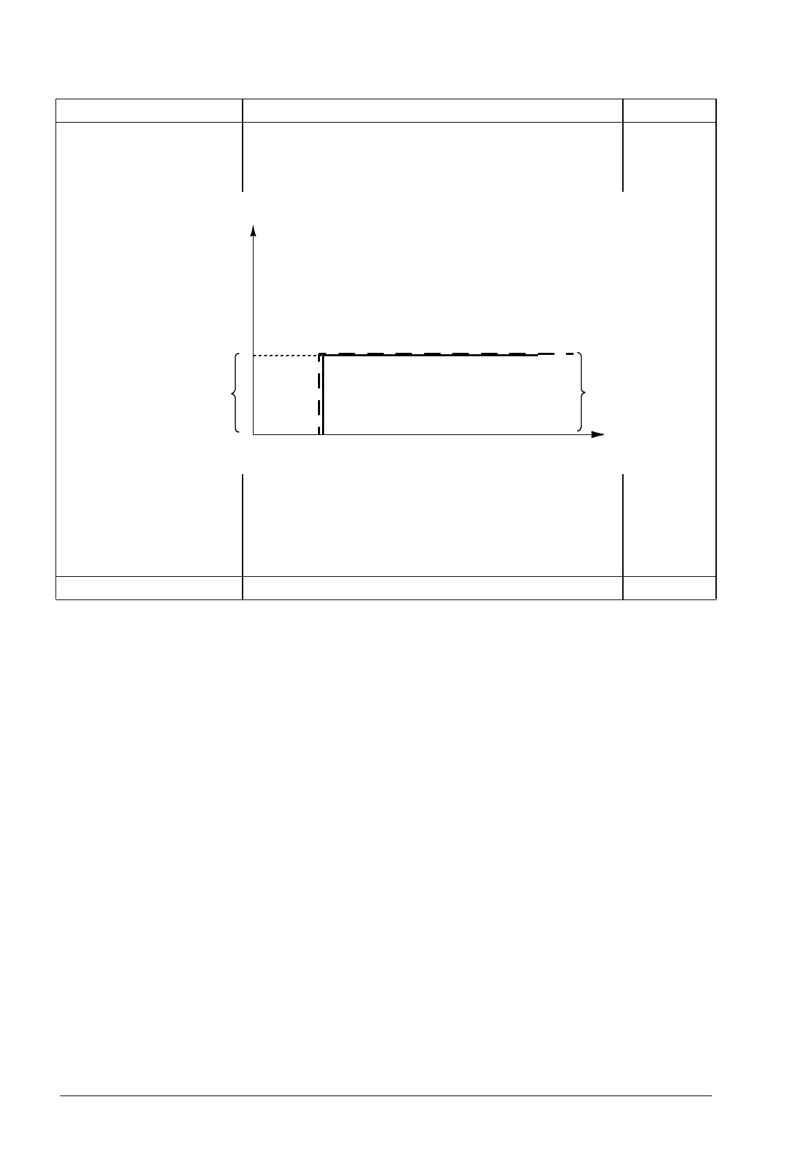
Defines the proportional gain (K
p
) of the speed controller. Too
high a gain may cause speed oscillation. The figure below
shows the speed controller output after an error step when the
error remains constant.
10.00;
5.00
(95.21 b1/b2)
If gain is set to 1.00, a 10% error (reference - actual value) in
the motor synchronous speed produces a proportional term of
10%.
Note: This parameter is automatically set by the speed
controller autotune function. See section Speed controller
autotune (page 38).
0.00 …250.00 Proportional gain for speed controller. 100 = 1
No. Name/Value Description Def/FbEq16
Gain = K
p
= 1
T
I
= Integration time = 0
T
D
= Derivation time = 0
%
Controller
output = K
p
×e
Time
e = Error value
Controller output
E

Table of Contents

Related product manuals