EasyManua.ls Logo

ABB ZX2 - Page 26

ABB ZX2
112 pages
Print Icon
To Next Page IconTo Next Page
To Next Page IconTo Next Page
To Previous Page IconTo Previous Page
To Previous Page IconTo Previous Page
Loading...
26 ZX2 GAS-INSULATED MEDIUM VOLTAGE SWITCHGEAR
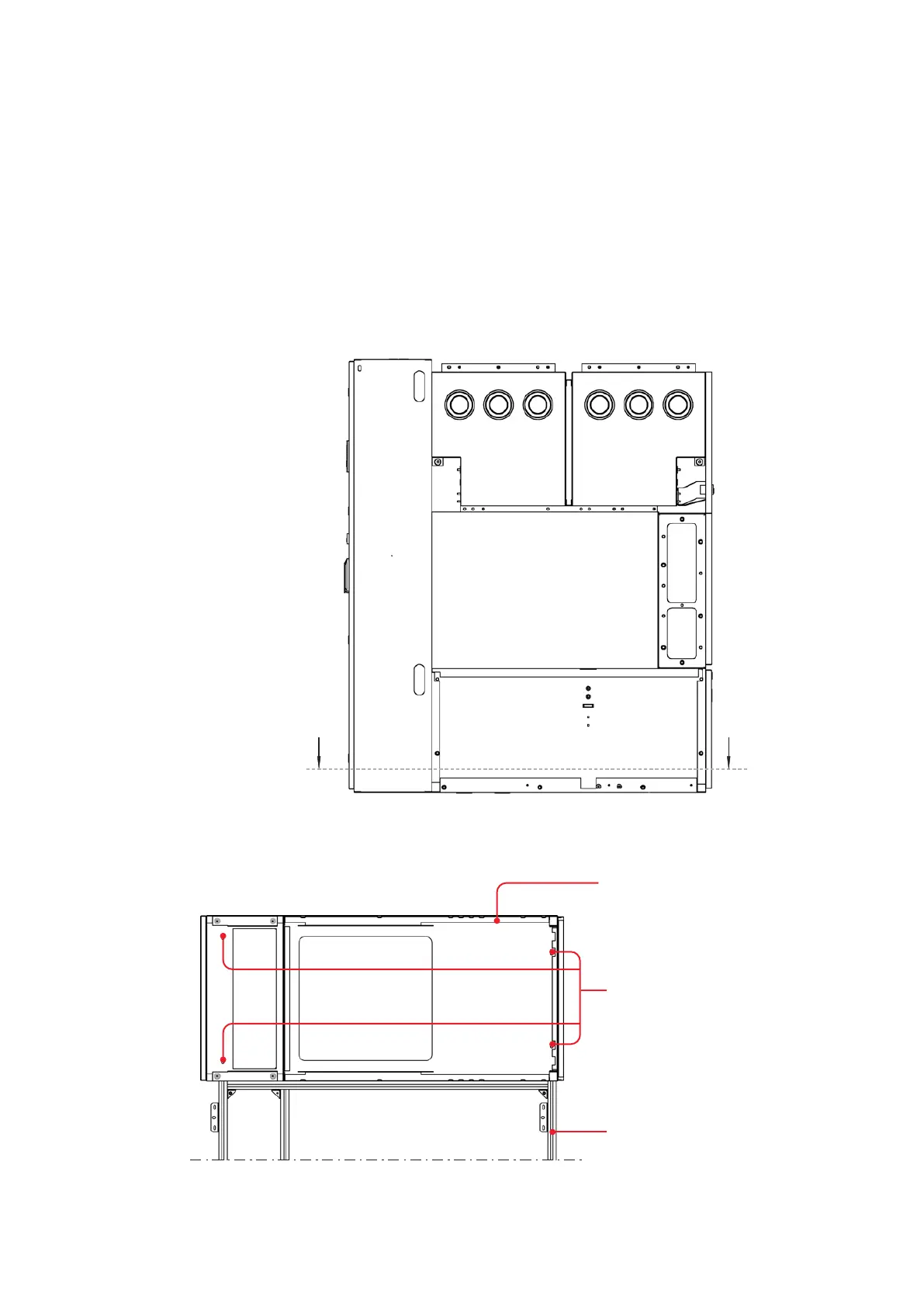
When the standard foundation frame made of
aluminum is used:
Insert M 8 T-nuts through the holes in the floor
plates into the slots in the foundation frame
sections. Join the floor plates using washers (1 x
washer 8.5 x 30 x 3 and 1 x dished washer 8) and
M 8 x 16 cheese head screws to the previously
positioned T-nuts (fig.s 3.3.2.2 a + b).
Fastening the panels to foundation frames
The design of the panel fixing on standard
foundation frame depends on the foundation
frame used.
Fig. 3.3.2.2 a:
Fastening the panel to
the foundation frame
made of aluminum
A
Section A-A
A
Panel
Floor frame
T-nut M 8
Washer 8.5 x 30 x 3
Dished washer
Cheese head screw M 8 x 16

Table of Contents

Related product manuals