EasyManua.ls Logo

ABB ZX2 - Page 34

ABB ZX2
112 pages
Print Icon
To Next Page IconTo Next Page
To Next Page IconTo Next Page
To Previous Page IconTo Previous Page
To Previous Page IconTo Previous Page
Loading...
34 ZX2 GAS-INSULATED MEDIUM VOLTAGE SWITCHGEAR
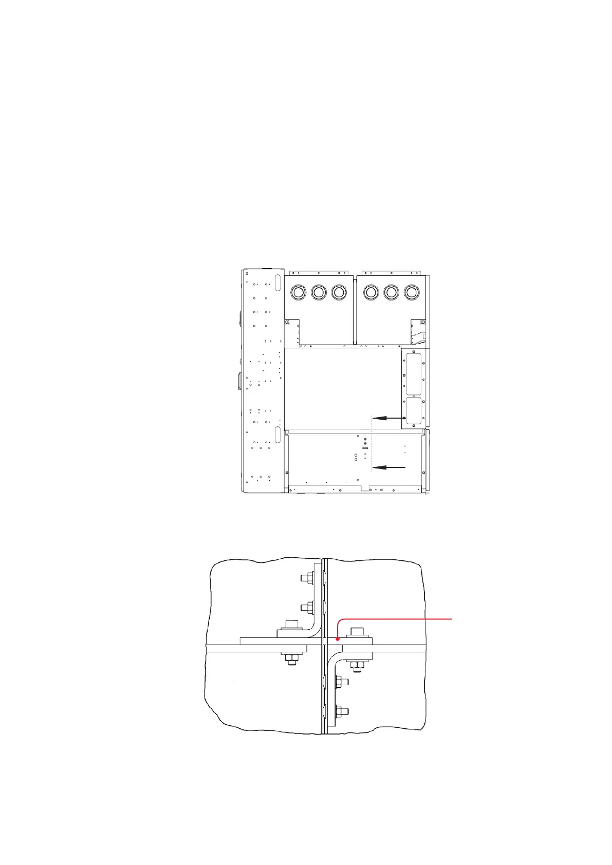
Lead the control wiring for the panel-panel
connection through the opening in the adjacent
panel.
Connect the grounding bars of the panels
together (fig. 3.3.2.13) by dismantling the
grounding link fitted at the works for transport,
guiding it through the opening to the adjacent
panel and tightening the screws with the
specified torque.
Install the further panels in the manner
described in section 3.3.2.
Fig. 3.3.2.13:
Assembling the
grounding bar link
Section A-A
Grounding link
Panel x
Panel y
A
A

Table of Contents

Related product manuals