EasyManua.ls Logo

Ampac FireFinder PLUS - Main CPU

Ampac FireFinder PLUS
128 pages
Print Icon
To Next Page IconTo Next Page
To Next Page IconTo Next Page
To Previous Page IconTo Previous Page
To Previous Page IconTo Previous Page
Loading...
Page 20
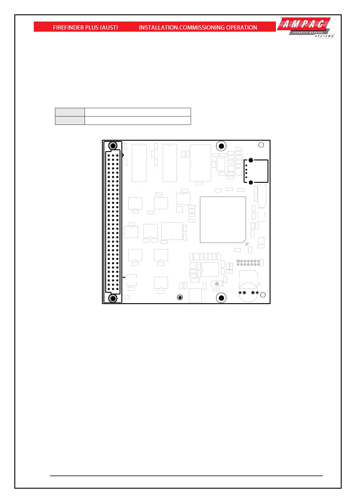
4.12 Main CPU
The Main CPU (BRD86MCPU) holds the main central processing unit including the Application
software and Configuration settings for the FACP.
The Main CPU is a 4-layer surface mount board
The processor runs at 60MHz.
16Mbytes of FLASH
32/64 Mbytes SDRAM
Connections
CN1
USB
CN2
To Main Board CN11
0V
USB
R30
U11
U6
C45
R25
U4
C32
C20
C31
C17
C27
C10
C4
C7
C11
+
C44
C15
C14
C1
C6
C5
C9
C36
C30
C43
C13
C12
C26
C25C24
C19
C40
C41
C42
C35
C21
C18
C16
C8
C2
C23
C38
C39
C22
C33
C28
C29
CN1
D2
D1
D4
D3
Q3
Q1
Q2
R2
R14
R1
R22
R24
R18
R17
R19
R15
R13
R6
R11
R4
R8
R9
R3
R10
R12
R26
R27
R7
R5
U5
U13
U3
U2
U14
U15
U10
U9
U16
U7
U12
U8
U1
X1
X2
ZDN3
ZDN1
ZDN2
CN2
R16
C3
C37
C34
R20
R21
R23
R28
R29
Figure 17: The Main CPU Board PCB Layout

Table of Contents

Other manuals for Ampac FireFinder PLUS

Related product manuals