EasyManua.ls Logo

Ampac FireFinder PLUS - 14 High Level Interfacing; High Level Interface Expander (BRD43 SPB)

Ampac FireFinder PLUS
128 pages
Print Icon
To Next Page IconTo Next Page
To Next Page IconTo Next Page
To Previous Page IconTo Previous Page
To Previous Page IconTo Previous Page
Loading...
Page 92
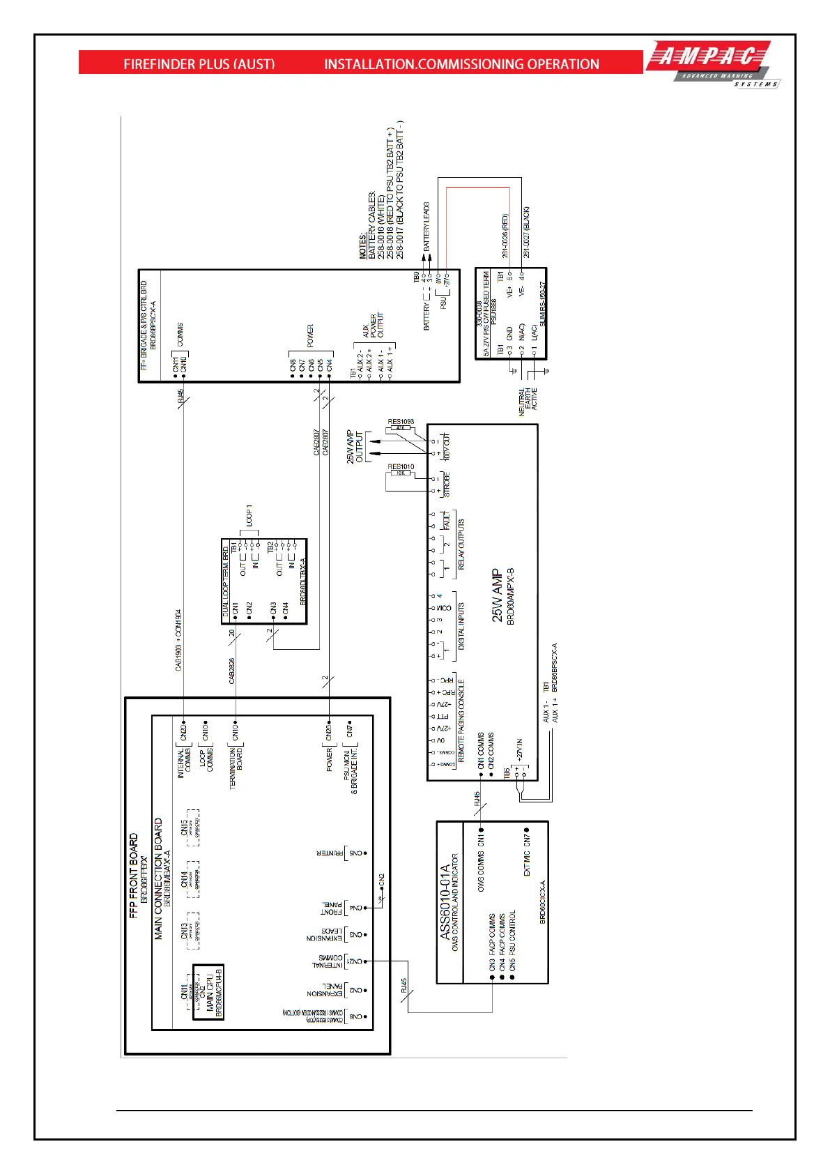
12.17.3 Panel Interfacing

Table of Contents

Other manuals for Ampac FireFinder PLUS

Related product manuals