EasyManua.ls Logo

ANthony 101 - Model 101 Humastat; Model 101 & 2100 Shelf Assembly Catalog Size;Shelf Size

Default Icon
99 pages
Print Icon
To Next Page IconTo Next Page
To Next Page IconTo Next Page
To Previous Page IconTo Previous Page
To Previous Page IconTo Previous Page
Loading...
Model 101/2100 Doors Service & Installation
TITLE:
99-13312-S001 Model 101/2100 Doors Service &
Installation
REV.
B
Page 40 of 95
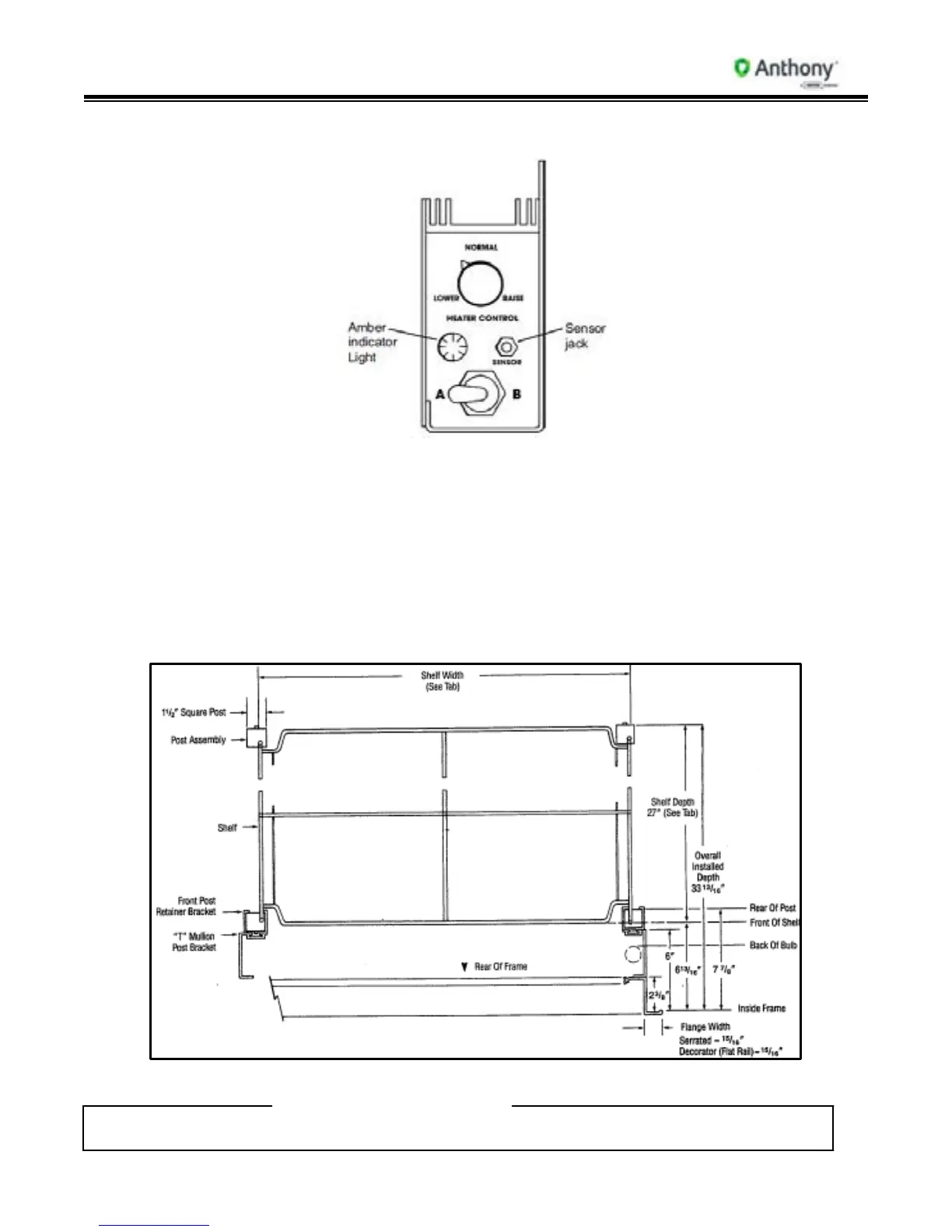
12. Red light indicates when heaters are functioning.
Control Panel End
View
Switch shall remain in Position “A” for normal operation
40. Model 101 Humastat
1. Sensor is prewired in frame mullion.
2. For Low Temp applications, see Sensor Part #F-161.
3. For Normal Temperature applications, see Sensor Part #F-1649.
41. Model 101 & 2100 Shelf Assembly Catalog Size/Shelf Size

Table of Contents

Other manuals for ANthony 101

Related product manuals