EasyManua.ls Logo

ANthony 101 - Models 101 & 2100 Door & Frame - Reversible Parts Placement (Start 10;89)

Default Icon
99 pages
Print Icon
To Next Page IconTo Next Page
To Next Page IconTo Next Page
To Previous Page IconTo Previous Page
To Previous Page IconTo Previous Page
Loading...
Model 101/2100 Doors Service & Installation
TITLE:
99-13312-S001 Model 101/2100 Doors Service &
Installation
REV.
B
Page 6 of 95
s: 199
1 to
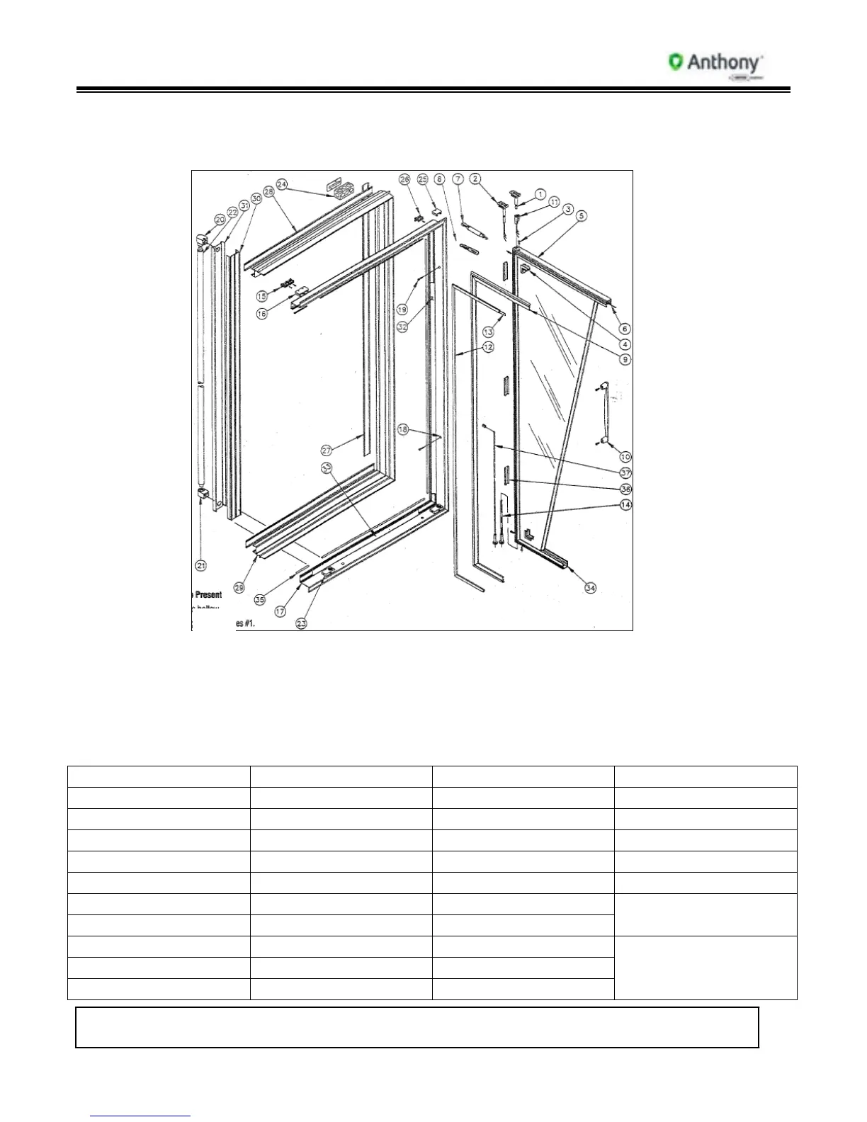
1. Models 101 & 2100 Door & Frame Reversible Parts Placement
(Start 10/89)
Change Present
1. Hinge Rail is hollow.
2. Use #2 Hinge Pin; replaces #1.
3. Delete #11 Receptacle.
4. Single hinge side Access Hole in center of Hinge Rail only. Delete #36.
Description
Description
Description
Description
1. Hinge Pin
11. Female Receptacle
21. Bottom Lamp Socket
31. Light Fixture
2. Molded Hinge Pin (’91)
12. Magnetic Gasket
22. Bulb
32. Contact Plate
3. Corner Screw
13. Magnet
23. Torquemaster
33. Contact Plate
4. Corner Piece
14. Torque Rod
24. Junction Box
34. Door Extrusion
5. Door Extrusion
15. Double Socket
25. Single Receptacle
35. Retainer
6. Heater Wire
16. Double Receptacle
26. Single Socket
36. Access Hole Cover
Plate
7. Hold-Open (’86-90)
17. Frame Extrusion
27. Raceway Cover
8. Hold-Open (’90)
18. Installation Hole
28. Raceway Cover
37. Torque Rod (Right
Angle)
9. Door Cover
19. Installation Screw
29. Raceway
10. Door Handle
20. Top Lamp Socket
30. Frame Mullion

Table of Contents

Other manuals for ANthony 101

Related product manuals