EasyManua.ls Logo

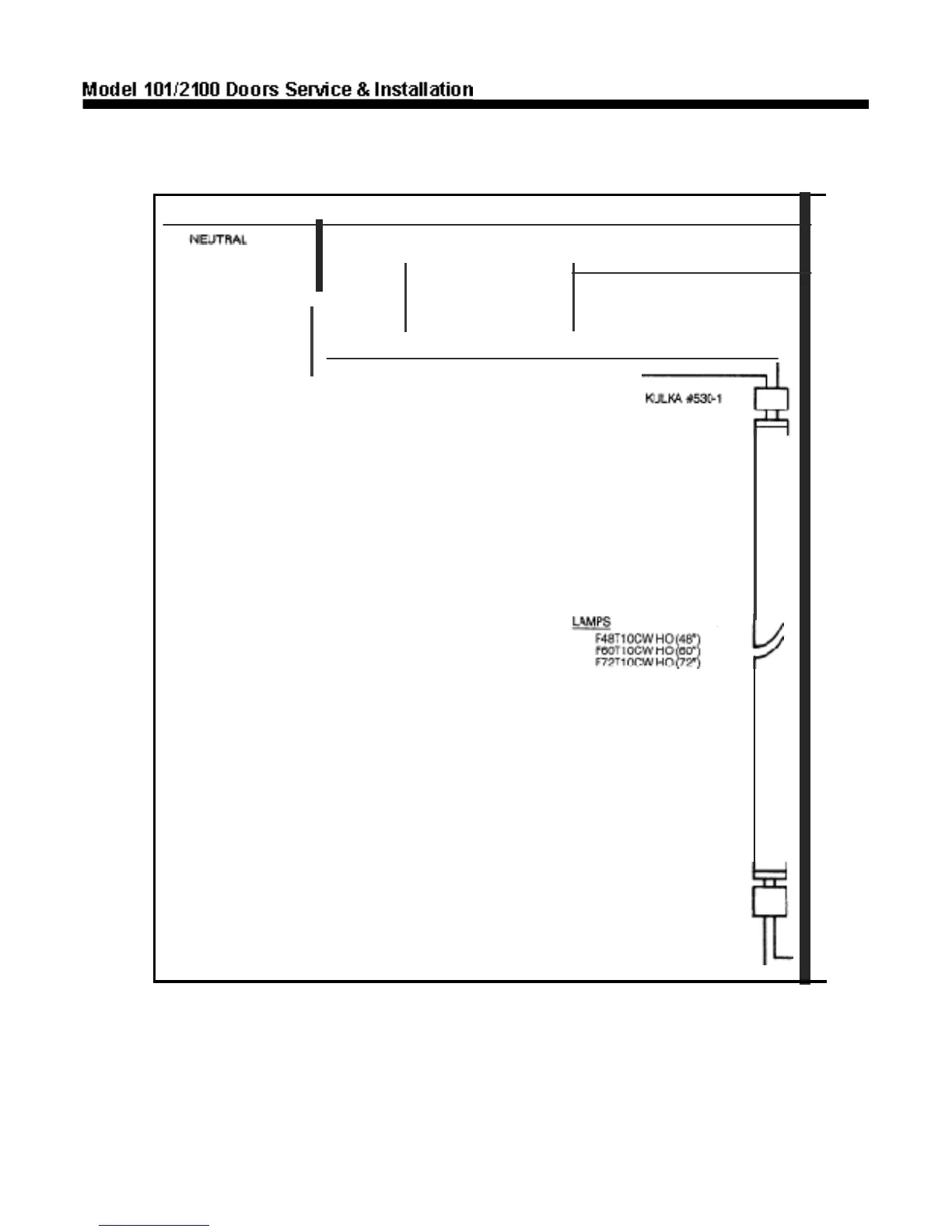
ANthony 101 - Models 101 & 2100 Normal Temp 120-Volt Remote Ballast and Lamp Wiring Diagram for 1- & 2-Light Systems; Models 101 & 2100 Normal Temp 120-Volt Remote Ballast and Lamp Wiring Diagram for 3-Light Systems

Default Icon
99 pages
Print Icon
To Next Page IconTo Next Page
To Next Page IconTo Next Page
To Previous Page IconTo Previous Page
To Previous Page IconTo Previous Page
Loading...
O Anthon
y
·
58. Models 101
& 2100 Low Temp 120-Volt Remote Ballast and
Lamp
Wiring
Diagram tor
1-Light Systems
!llK
'
/IKf
BUE
BWE
HMPial
l
asl
UN
I
\Itf$i.L
t'95
l
S
·
.
T
C--
P
RED
R
E
:
J
Kll..K\
15:»2

Table of Contents

Other manuals for ANthony 101

Related product manuals