EasyManua.ls Logo

Bosch INTEGRUS - Integrus Charging Units

Bosch INTEGRUS
94 pages
Print Icon
To Next Page IconTo Next Page
To Next Page IconTo Next Page
To Previous Page IconTo Previous Page
To Previous Page IconTo Previous Page
Loading...
Integrus Charging Units
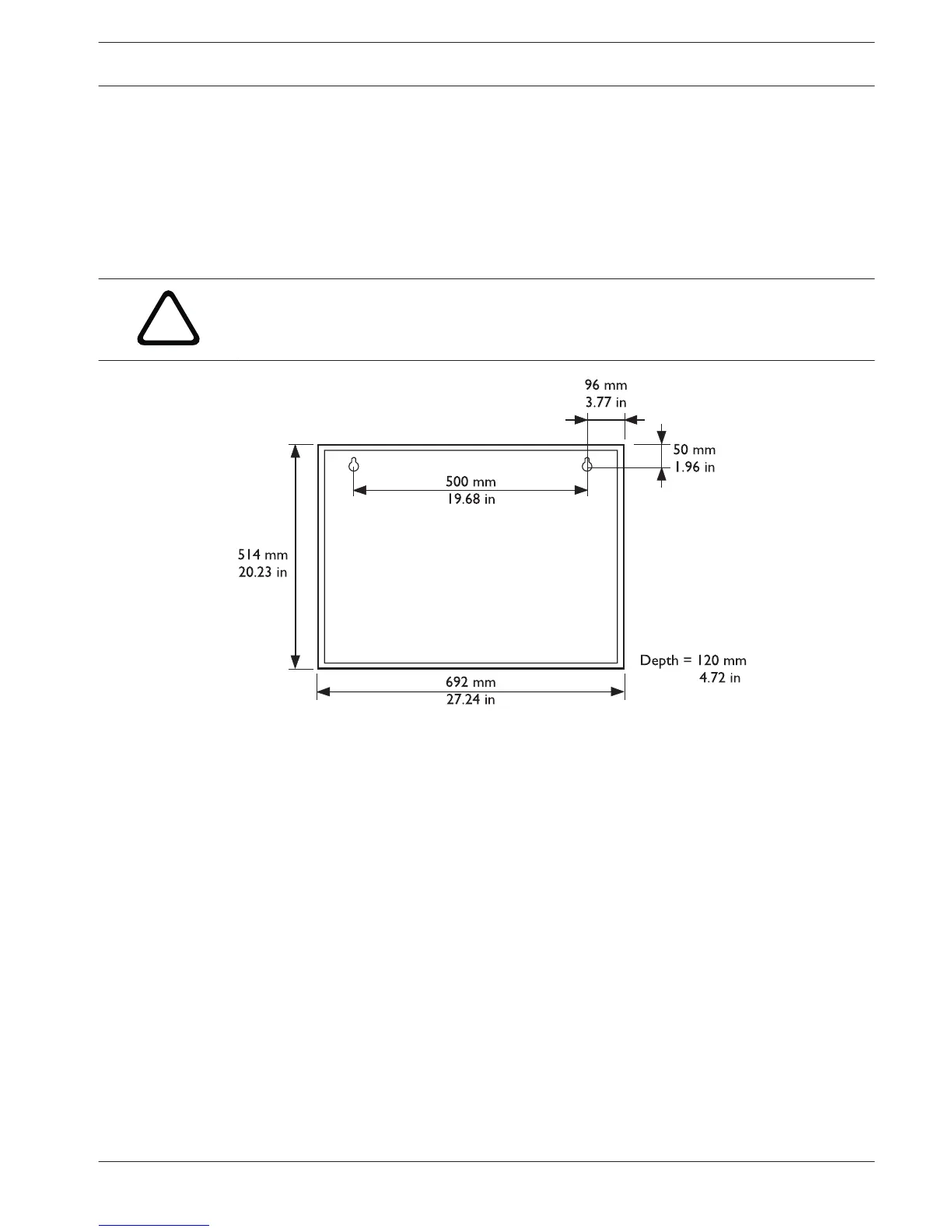
Mount charging cabinet on a wall
LBB 4560/50 is suitable for either table-top or wall-mounted use.
It can be wall-mounted using 5 mm (0.19 inch) screws, with a head diameter of 9 mm
(0.35 inch). The screws and plugs delivered with the LBB 4560/50 are designed to mount the
unit on a solid brick or concrete wall. Two holes, 8 mm in diameter and 55 mm in depth, must
be drilled 500 mm apart (see the next figure).
!
Warning!
To comply with UL and CSA regulations, the charging cabinets must be mounted in such a
way that they can be easily removed by hand in case of emergency.
Figure 5.12: Charging cabinet mounting dimensions
5.5
Language Distribution System Installation | en 41
Bosch Security Systems B.V. Operation manual 2013.11 | V1.4 |

Table of Contents

Other manuals for Bosch INTEGRUS

Related product manuals