EasyManua.ls Logo

Branson 4015r - Page 386

Branson 4015r
454 pages
Print Icon
To Next Page IconTo Next Page
To Next Page IconTo Next Page
To Previous Page IconTo Previous Page
To Previous Page IconTo Previous Page
Loading...
7
-
8
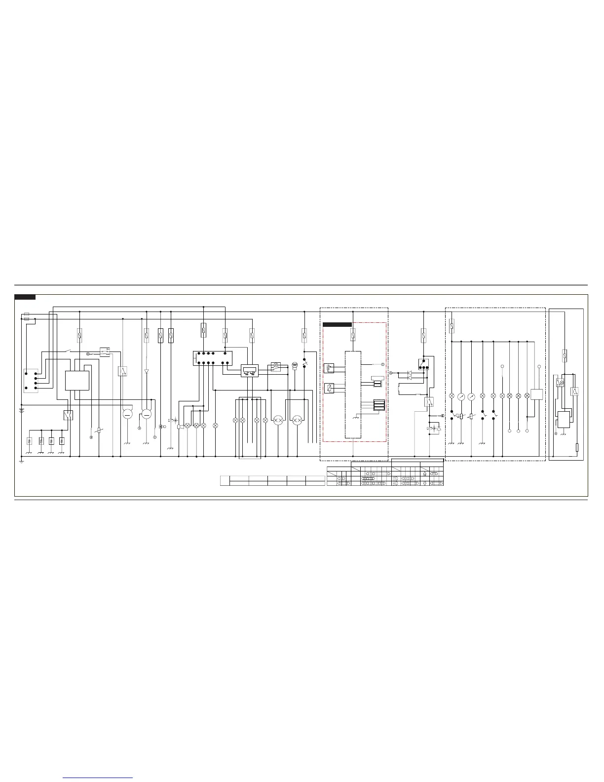
CHAPTER 7 ELECTRIC SYSTEM
42hW-201601
3015R(h)/3515R(h)/4015R(h)/F36R(h)/F42R(h) TRACTOR
$
)5:
7:5
*/:
&2/25
*/2:5(/$<
%$77(5<
*/2:3/8*
%:5
*/2:3/8*
*/2:3/8*
*/2:3/8*
%
%:
&
%5
%5
(
&
%
)86(%/,1.32:(5
)86(%/,1.*/2:
%<
%/
%/
%%:
%:5
%<
%:%
%/
*/%
)5%
*/:
*/2:&21752//(5
*<
**<
%
)86(
$
$
*/%
%OXH
5HG
%ODFN
<HOORZ
%
<
7
*UHHQ
:KLWH
*
:
/
5
67$57(5
0
3
2U
/J
%U
*U
%URZQ
*UD\
*(1(5$725
*
/LJKW*UHHQ
2UDQJH
3
6$)(7<67$57(5
5(/$<3
**<
67$575(/$<
6%5
)%
6
%:
% %
5(/$<3
6%5
%:
%:
%:5
%:%
&$%/(%
*:5
/,*
)5/
)(('3803 )5*
)86(
(0(5*(1&<
2))
12
6:,7&+
21
%
1&
+($'/$035
+($'/$03/
0(7(53$1(/
7$,//$03
+,*+%($0/$03
%:5
%:%
%:
)5*
7*/
&20%,1$7,216:,7&+
7*%
%
7
$
)86(
5
%
/
)86(
',5(&7,216,*1$//$03575$,/(5
',5(&7,216,*1$//$03/75$,/(5
&20%,6:,7&+
',5(&7,216,*1$//$03/
&
.(<6:,7&+
2))
21
67$57
%
%5
%5
',5(&7,216,*1$//$035
5($5&20%,1$7,21/$035
0(7(53$1(/
& (
5($5&20%,1$7,21/$035
0(7(53$1(/
%
/,*+7
2))
7
5($5&20%,1$7,21/$03
5
%
7851
2))
5
/
/
5($5&20%,1$7,21/$03
6723/$0375$,/(5
7$,//$0375$,/(5
)86(
)/$6+81,7
7*<
7:/
7*%
7:*
8%
6+85,5(*
5(/$<
6+85,5(*
%$7
%$7
5(/$<
)5*
7*
7*<
$
+$=$5'/$036:
6723/$036:
/%U/
3
7
%:5
(1*,1(672362/ )5<
.(<6:,7&+
*(1(5$725',2'(
%5
%:
&/87&+ 6$)(7< 6:
6%<
)86(
$
3/<
)5*
)5%
3729$/9(
3725(/$<
3</
&%
%%
3<*
372&+$1*(6:,7&+
3/5
*%
3<%
6$)(7<6:,7&+
,167580(173$1(/'3)
0(7(53$1(/
+$=$5'
/$03
)86(
$
$
)86(
$
)86(
%:5
&$%/(%
,*175$,/(5
+,*+
/2:
5[77/
7[77/
86%9
&$1
6&$11(5
',))6(1625
7(036(1625
$
)86(
+251
+251
%
7*:
+
'3)/2**(5
372
(1*$*(0(17
6:
3015Rh/3515Rh/4015Rh
3
)8(/6(1625
%
7
)5<
)86(
$
3</
0<*
0<5
&22/$177(03
2,/35(6685(
0<%
0<:
3$5.,1*%5$.(
372/$03
:$7(57(03*$8*(
2,/:$51,1*/$03
)8(/*$8*(
3$5.,1*/$03
0*/
21(6,'(%5$.(6:
21(6,'(%5$.(6:
%
&
<
*/2:/$03
0</
*<
/:%
&+$5*(/$03
*<
7$&$20(7(5
+2850(7(5
'
(
*
/:%
'3)/$03
'*:
'%
'5%
'%
'<
&:
&%:
'/%
'5/
'/5
'%
/:%
)5/
%
*/2:5(/$<
*/2:5(/$<
67$57(55(/$<
)8(/3803
%
)8(/&870$*1(79$/9(
:$7(57(03(5$785(6(1625
7*<
$
)86(
)5<
2U
./
+67
&58,6(
/%U/
*
.%U
81,7
&58,6(6:,7&+
&58,6(5(/$<
&58,6(0$*1(7
A42W702A
HST MODEL

Table of Contents

Related product manuals