EasyManua.ls Logo

Branson Emerson 2000X aed - Page 59

Branson Emerson 2000X aed
120 pages
Print Icon
To Next Page IconTo Next Page
To Next Page IconTo Next Page
To Previous Page IconTo Previous Page
To Previous Page IconTo Previous Page
Loading...
1019572 REV. 03 49
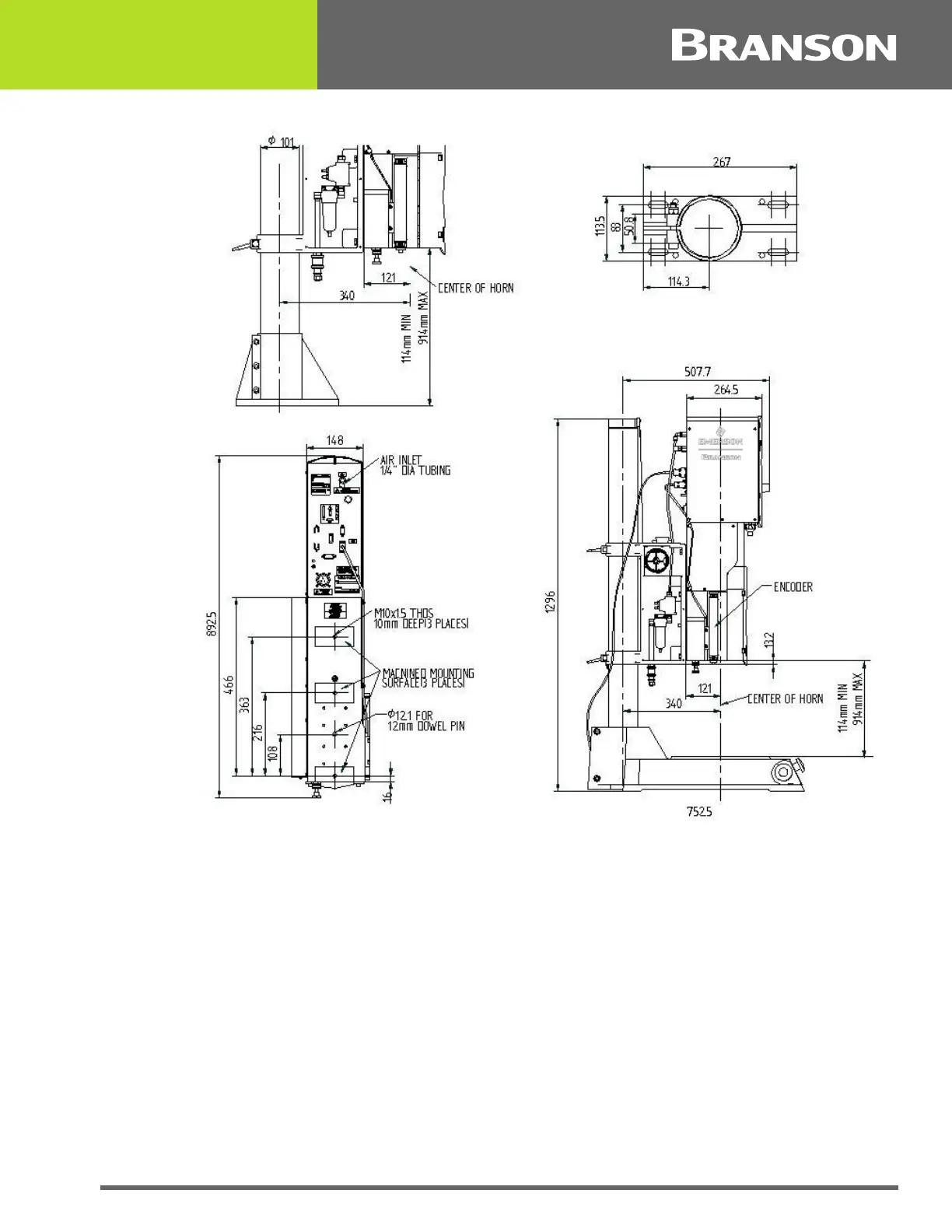
Figure 4.8 2000X aed 15 kHz Actuator Dimensional Drawing

Table of Contents

Related product manuals