EasyManua.ls Logo

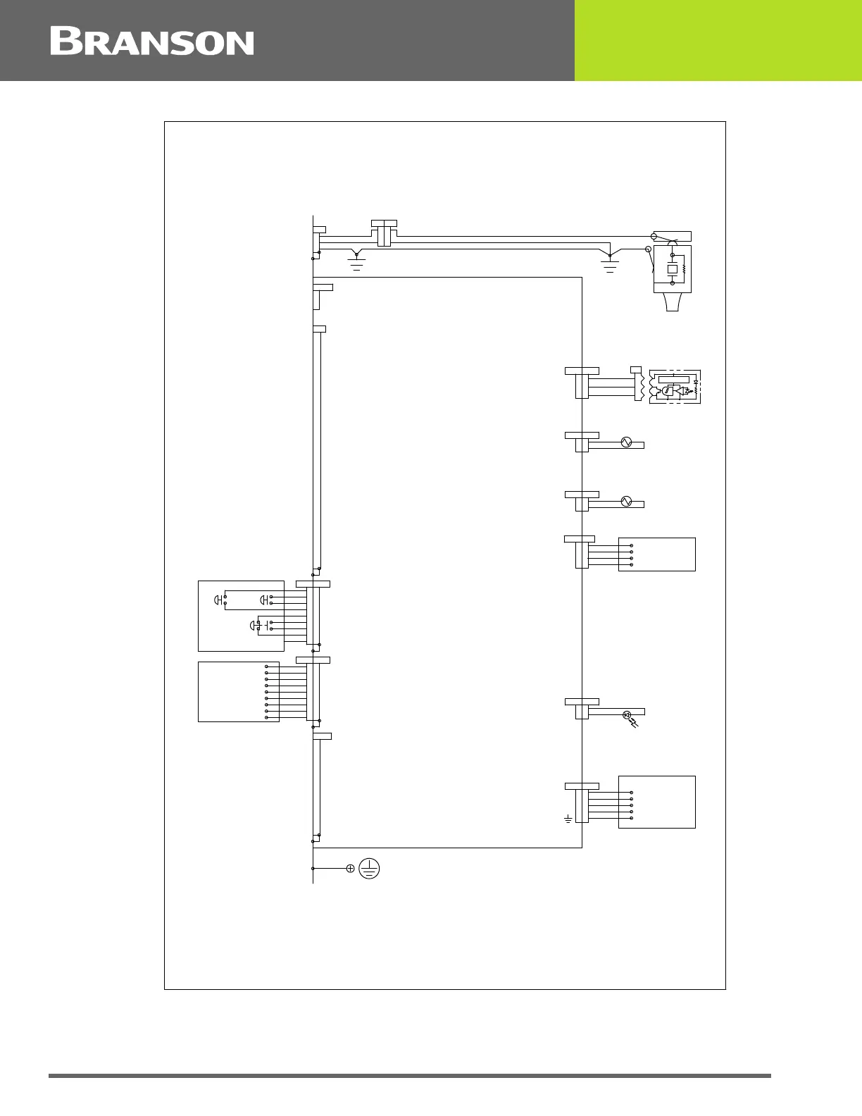
Branson Emerson 2000X aed - Figure 4.9 Block Wiring Diagram

Branson Emerson 2000X aed
120 pages
Print Icon
To Next Page IconTo Next Page
To Next Page IconTo Next Page
To Previous Page IconTo Previous Page
To Previous Page IconTo Previous Page
Loading...
50 1019572 REV. 03
Figure 4.9 Block Wiring Diagram
5(027(
9$/9(
3$
&.$*(
$2
21/<
6%($0
6+,(/'
(;&,$7,21
6(16(
6(16(
(;&,$7,21
$*1'
6(16(
6(16(
9
- 3
3523257,21$/
9$/9(
$()21/<
3,/27
/,*+7
965&
8/665&
(;7/665&
6965&
1&
1&
3%B287B9
(B6723B9
3%B287B9
(;7B/6B6,*
9571
965&
965&
(B6723B65&
8/6B6,*
965&
9571
*1'
9
6(1287
965&
35&17
9571
69571
6965&
69571
6965&
9571
8/66,*
35&17
6(1287
9571
6965&
69571
6965&
3/571
3/65&
69571
965&
'*1'
3%B'59B9
3%B'59B9
(6723B9
(6723B9
(672365&12
(672365&1&
3%B,1B9
3%B,1B9
9571
69B5(4B9
69571
69B5(4B9
9571
(;7/66,*
69&&9
6935,0$5<
/,1($5
(1&2'(5
1&
1&
1&
1&
1&




1&
'*1'
3
-$
-$
-$
-$
-$
-$
-$
$
%
&$6(
$
%

3
'*1'

3




-$




























-
&6B'$
$
%
5;
7;
&6B$'
$
%
6B&/.
5;
7;
&6B$'
6B&/.
&6B'$
-$
&6B',*
&6B',*
1&
(67239
1&
-
$
%
&
5)287
5)571
3
3
3
3
3
3 -
3$/0%8772167$57
3%
3%
(0(5
6723
8/6
92/75(*
&219(57(5
$&
3&%2$5'
*'6
2
37,21$/
$&78$725
,17(5)
$&(
$&78
$725
5($53
$1(/
(B6723B65&
'*1'
69571
756B6,*
69571
69B5(4B9

Table of Contents

Related product manuals