EasyManua.ls Logo

Calix ODC-80 - Installation Prerequisites; Site Requirements

Calix ODC-80
108 pages
Print Icon
To Next Page IconTo Next Page
To Next Page IconTo Next Page
To Previous Page IconTo Previous Page
To Previous Page IconTo Previous Page
Loading...
Calix ODC-80 Installation Guide
13
Proprietary Information: Not for use or disclosure except by written agreement with Calix.
© 2001-2003 Calix. All Rights Reserved.
Installation Prerequisites
Site requirements
You will need a concrete pad with conduit entry for subscriber cables, AC power, and
ground to support the Calix ODC-80.
Install a ground rod, or similar grounding device, with a maximum resistance to ground of
20 ohms near the pad site.
See the "Calix ODC-80 Pour-In-Place Template Instructions" if you plan to construct the
pad using a Calix template.
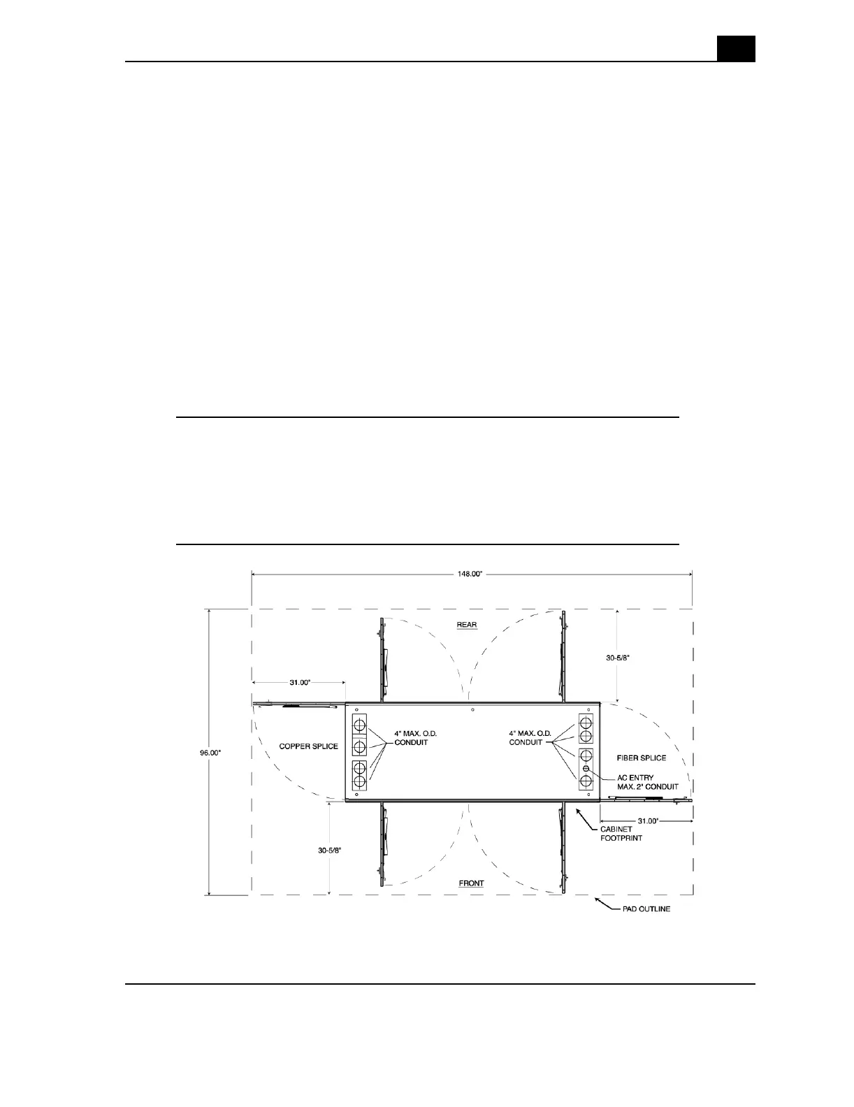
Footprint dimensions
Recommended pad dimensions are 148 inches by 96 inches; 5 1/2 inches deep. Pad depth
may vary depending on site and environmental conditions.
These pad dimensions allow for full door clearance around the cabinet.
Footprint clearance

Table of Contents

Related product manuals