EasyManua.ls Logo

Carrier VECTOR 1550 Series - Page 45

Carrier VECTOR 1550 Series
270 pages
To Next Page IconTo Next Page
To Next Page IconTo Next Page
To Previous Page IconTo Previous Page
To Previous Page IconTo Previous Page
Loading...
62-61753-21
2-21
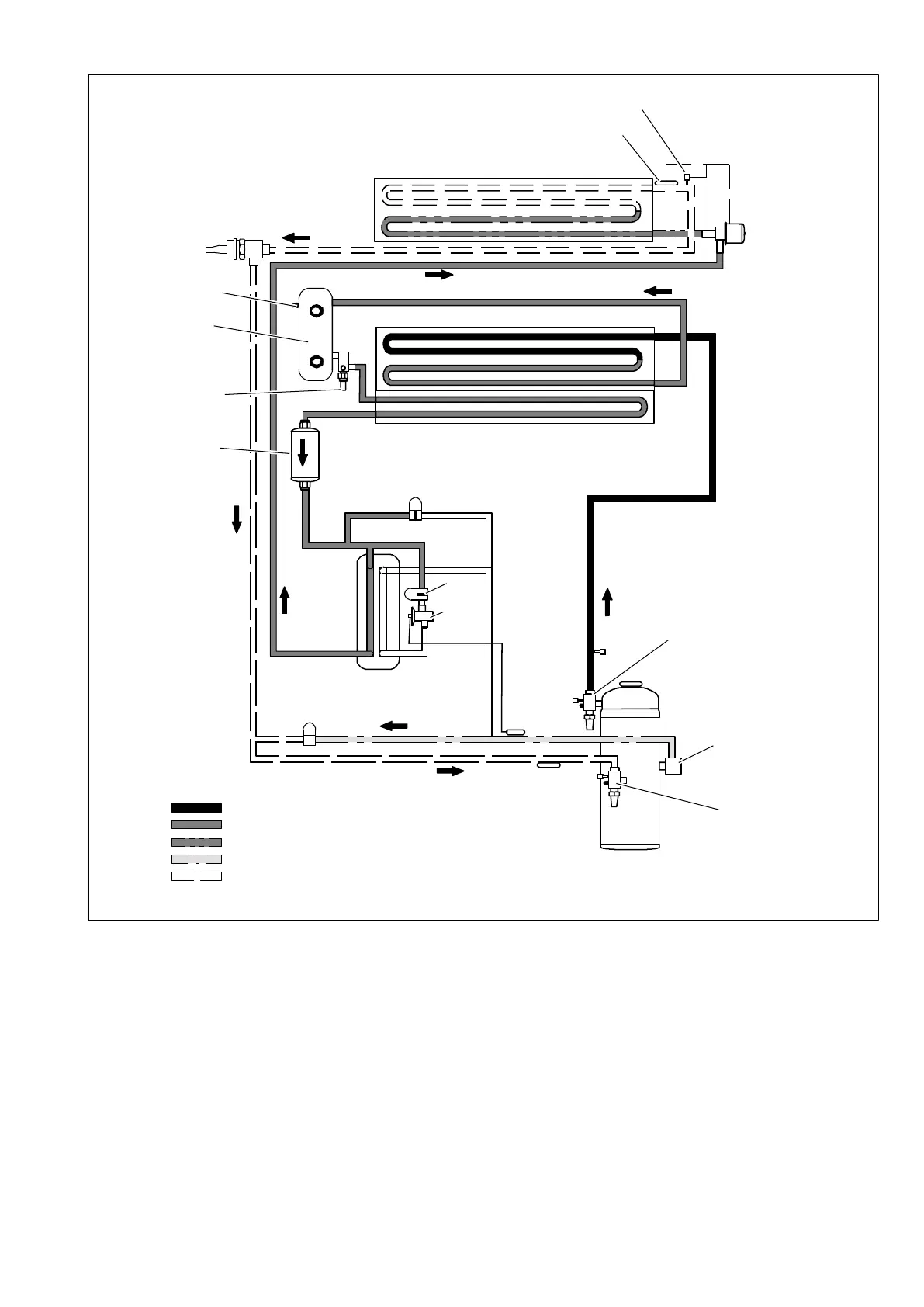
CSMV
COMPRESSOR
SUCTION
SERVICE VALVE
EVAPORATOR
EVXV
USV
COMPRESSOR
ECONOMIZER
CONNECTION
LIQUID LINE
SERVICE VALVE
COMPRESSOR
DISCHARGE
SERVICE VALVE
RECEIVER
CONDENSER
SUBCOOLER
ECONOMIZER HEAT
EXCHANGER
FILTER DRIER
LIV
ESV
TXV
HIGH PRESSURE VAPOR
HIGH PRESSURE LIQUID
LOW PRESSURE LIQUID
LOW PRESSURE VAPOR
MEDIUM PRESSURE VAPOR
RELIEF VALVE
EVOT
EVOP
Figure 2-8. Refrigerant Circuit Bypass Mode

Table of Contents

Related product manuals