EasyManua.ls Logo

Doosan DVF5000 - Page 8

Doosan DVF5000
102 pages
Print Icon
To Next Page IconTo Next Page
To Next Page IconTo Next Page
To Previous Page IconTo Previous Page
To Previous Page IconTo Previous Page
Loading...
6
1. Preparation Before Machine Shipping
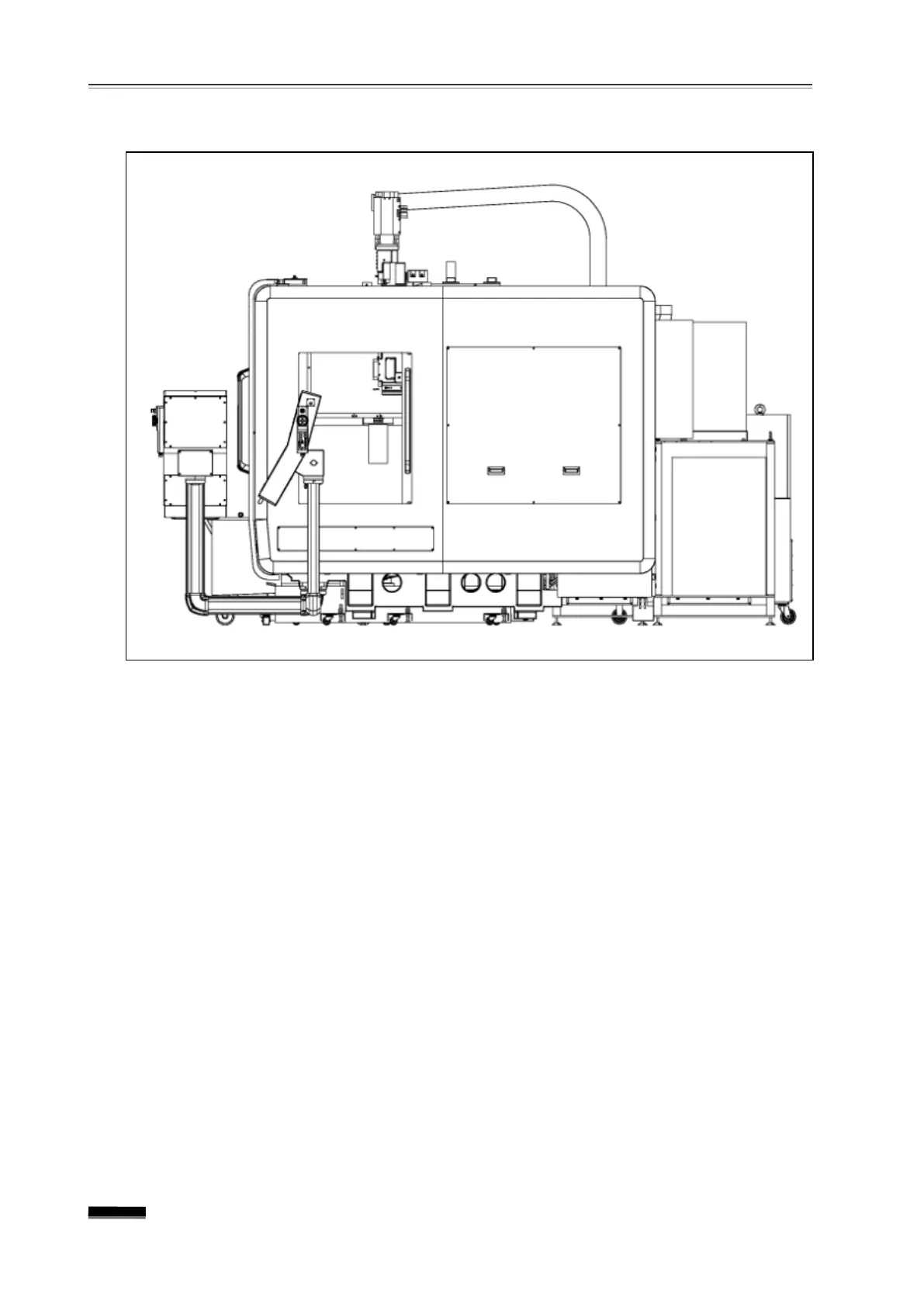
Note 3) : Standard Machine Right View

Table of Contents

Related product manuals