EasyManua.ls Logo

Doosan DVF5000 - Foundation Work

Doosan DVF5000
102 pages
Print Icon
To Next Page IconTo Next Page
To Next Page IconTo Next Page
To Previous Page IconTo Previous Page
To Previous Page IconTo Previous Page
Loading...
7
1. Preparation Before Machine Shipping
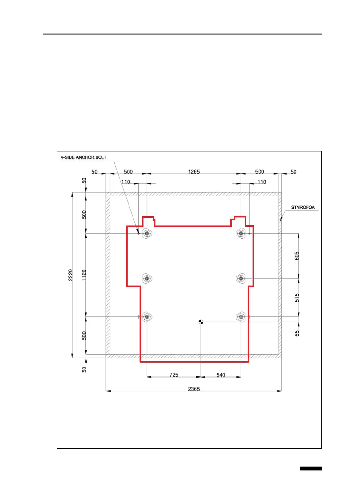
1.2 Foundation Work
1) Foundation Work Period and Inspection
Ideally, it should take at least two months from completion of the foundation to
installation of the machin.
The concrete will need to be cured for a period of one month or more.
After the foundation is completed, the foundation should be checked based on the
foundation drawing. If an examination of dimensions of various parts of the foundation
pose problems, the repair must be completed before the machine arrives.
2) Machine installation foundation drawing
1) Power supply wiring to the machine must be prepared and constructed by the user
.
2) Curing period of primary concrete should be one month or more.
3)
The values indicated on the drawing are recommended values only; and, in the
case of soft ground, verification by a structural designer is required.

Table of Contents

Related product manuals