EasyManua.ls Logo

Dynisco UPR700 - Page 17

Dynisco UPR700
72 pages
Print Icon
To Next Page IconTo Next Page
To Next Page IconTo Next Page
To Previous Page IconTo Previous Page
To Previous Page IconTo Previous Page
Loading...
UPR700 Microprocessor-Based Pressure/Process Indicator 17
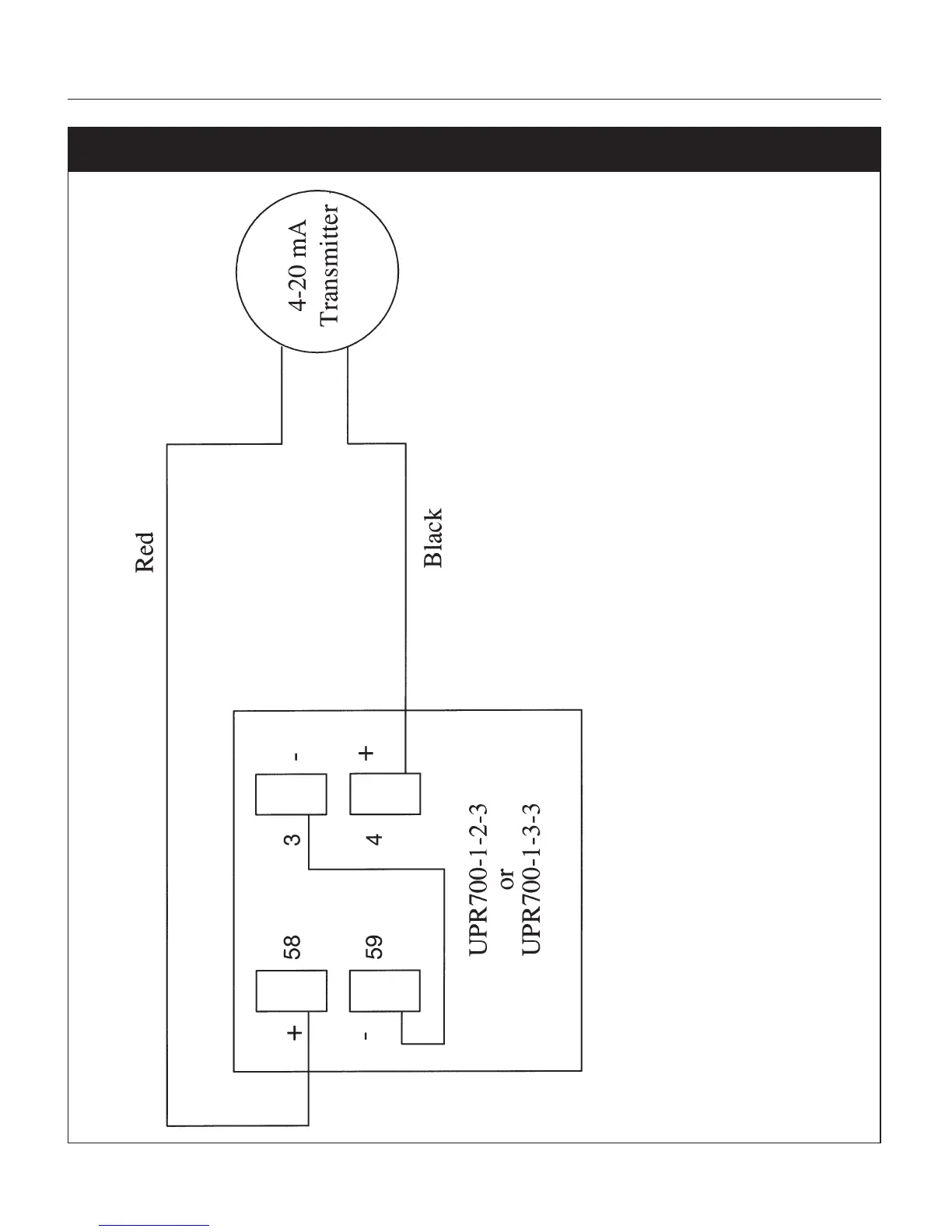
Fig. 4
UPR700 Wiring - 4-20mA Transmitter Internal 24 VDC Power Supply - Secondary Input

Table of Contents