EasyManua.ls Logo

EIP 545A - Page 213

EIP 545A
221 pages
Print Icon
To Next Page IconTo Next Page
To Next Page IconTo Next Page
To Previous Page IconTo Previous Page
To Previous Page IconTo Previous Page
Loading...
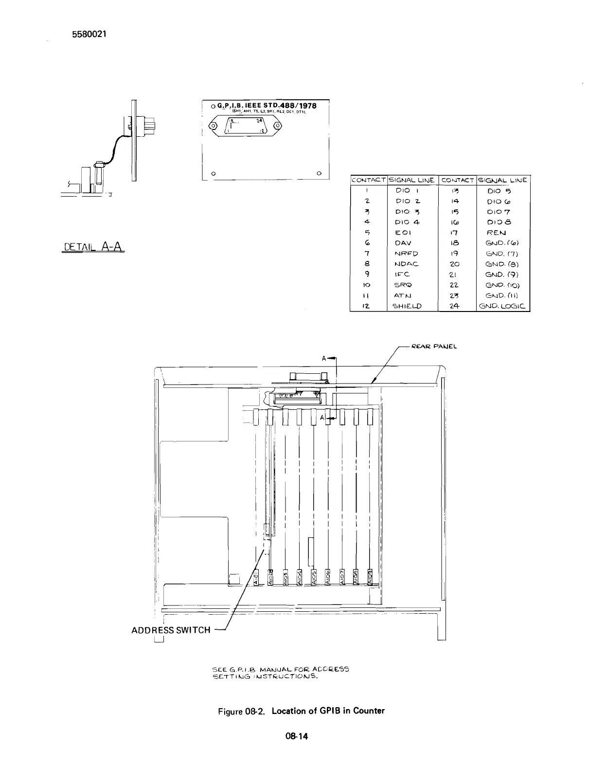
DETAII
A-A
,---
Q€AR
PAUEL
COhlTACT
I
2
3
4
5
6
7
8
9
10
I
I
12
ADDRESS
SWITCH
U
SEE
G
P.1
A
MAMUAL
FOR
ACCEESS
SETTING 'NSTF~UCTIONS.
SIGNAL LINE
Dl0
I
010
L
Dl0
7
Dl0
4
€01
D
AV
WRFD
NDAC
IFC
SRQ
AT
N
5HlElD
Figure
082.
Location
of
GPlB
in Counter
CONTACT
I?
14
15
10
17
I8
19
20
21
22
27
24
SIGUAL LlhlE
..~.
Dl0
5
010
0
010
7
013
6
REhJ
GND.
16)
GUO.
(7)
GNO.
(8)
GND.
(9)
GND.
(10)
CUD
(I
I)
GNG.L.OGIL
Scans by ArtekMedia © 2007

Table of Contents