EasyManua.ls Logo

Elcon HiD 2000 Series - Page 57

Default Icon
129 pages
Print Icon
To Next Page IconTo Next Page
To Next Page IconTo Next Page
To Previous Page IconTo Previous Page
To Previous Page IconTo Previous Page
Loading...
5-19
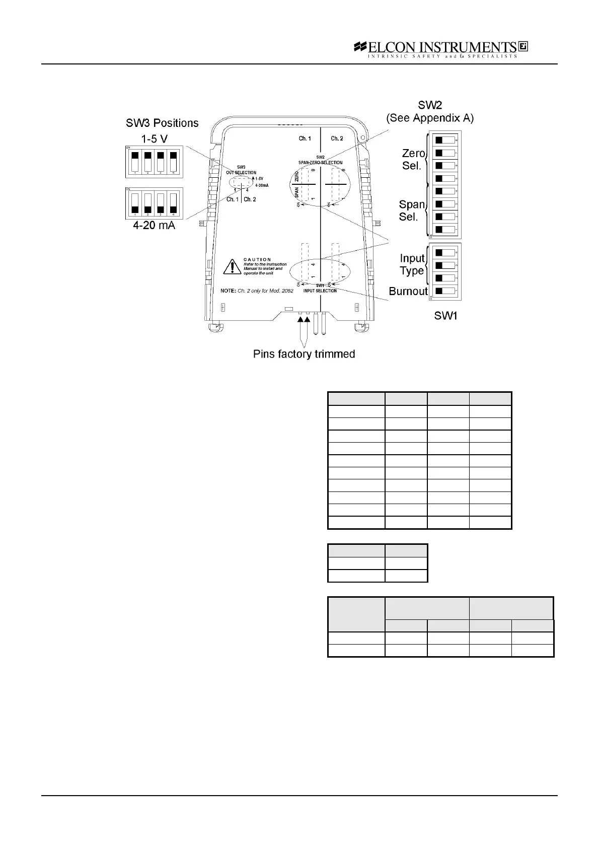
Configuration options
The inputs can be configured as:
Thermocouple ( type B, E, J, K, N, R, S, T, L ) or mV
Input Zero and Span Value
Burnout segnalation UP or DOWN
The outputs can be configured as:
Current output 4-20 mA
Voltage output 1-5 V
The configuration is performed in the following way:
remove the module from termination board pulling-up
the tab on each side of the module
set the dip-switches according to the figure and to the
tables
The prongs for this model are trimmed to polarise it
according to it’s safety parameter. Please do not change.
See chapter 4.5 for more details.
Input SW1-2 SW1-3 SW1-4
MV OFF OFF OFF
TC “B” OFF OFF OFF
TC “E” OFF ON ON
TC “J” OFF OFF ON
TC “K” OFF ON OFF
TC “N” ON OFF OFF
TC “R” OFF OFF OFF
TC “S” OFF OFF OFF
TC “T” OFF ON OFF
TC “L” ON ON ON
Burnout SW1-1
UP OFF
DOWN ON
Output Ch.1 Ch.2
(Only for HiD 2062)
SW3-1 SW3-2 SW3-3 SW3-4
4-20 mA OFF OFF OFF OFF
1-5 V ON ON ON ON
Note: for input range setting refer to appendix
A for Zero and Span Tables according to
thermocouple types. Also refer to appendix A
for calibrating instructions.

Table of Contents